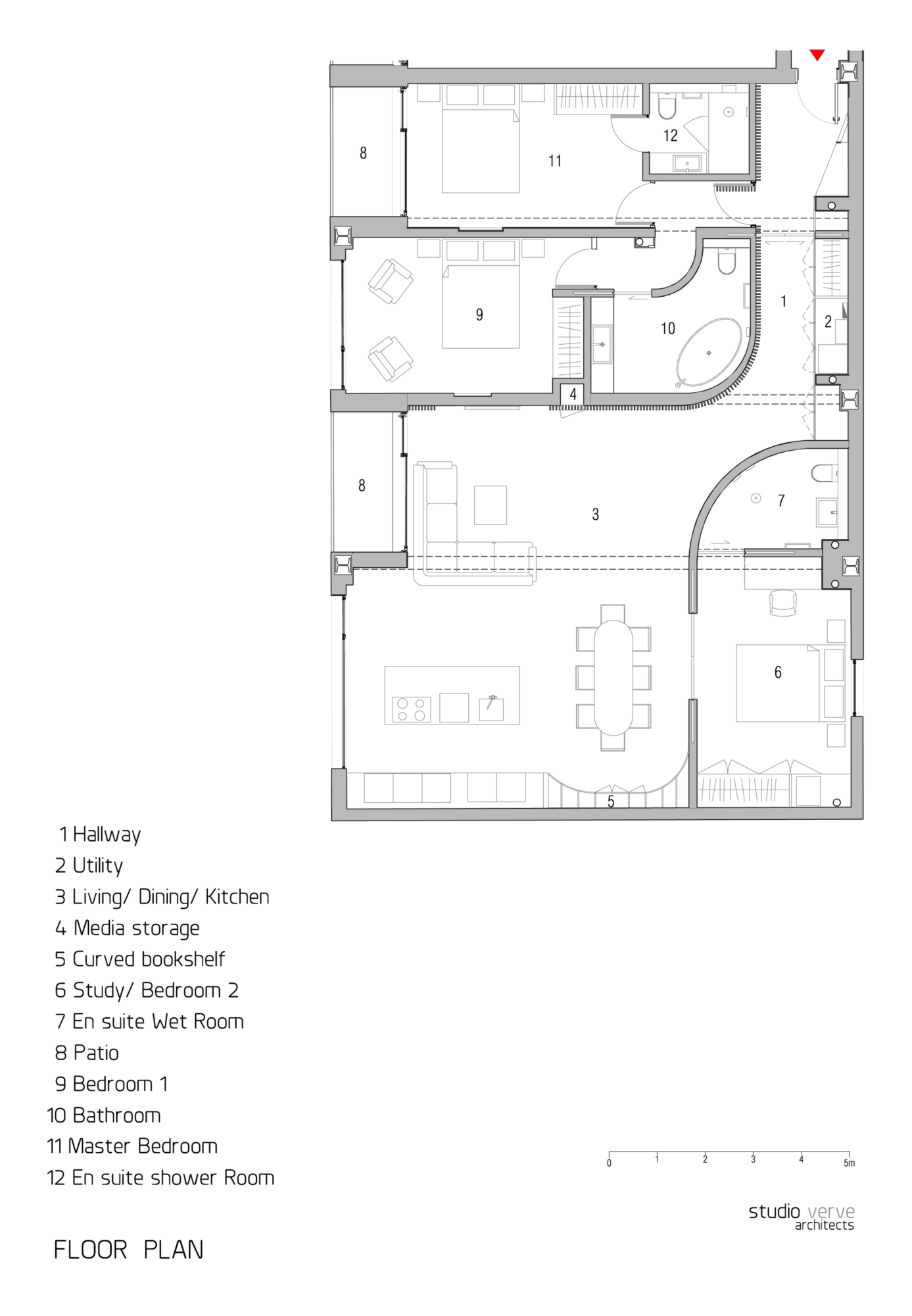
This cozy and comfortable apartment was designed by Studio Verve Architects and can be found within the spectacular capital of England – London. Featuring 1,614 square feet of living space, the apartment was created by merging a total of 9 loft-style apartments that were located conveniently on Old Nichol Street and Redchurch Street.
The team that was in charge of building and designing this amazing abode did a fantastic job in transforming it into a contemporary masterpiece of architecture. The exceptional lighting arrangements, curved walls and generous windows give off a sense of spaciousness and warmth that has the potential to impress instantly, but the remarkable furnishing choices are also quite breathtaking to say the least. Nothing but the finest materials were used in the creation of this particular apartment, materials such as concrete and white oak, which manage to complement each other in a dazzling display of elegance and fine taste.
Bespoke shelves, cloud ceilings, an open-plan lounge, a terrace and a large kitchen are just some of the highlights of this stunning residence. You can admire them up close by yourself while browsing through the following images.
Photos by Luke White, Time & Space















More Similar Articles Like This
Gorgeous And Spacious Home In Sunset Strip
5 Ways to Turn Your Yard Into a Fancy Space
The Sophisticated Casa Villa Flamingo in Spain
Spectacular Rooftop Apartment by Innocad
Vibrant Concrete Floor Paint Colors to Elevate Your Space
70 Shades of Green: Benjamin Moore’s Vibrant Paint Colors
Boracay Resort & Spa in the Fascinating Philippines
Outstanding Bodrum Houses in Yalikavak, Turkey