Dietrich | Untertrifaller Architekten have designed House LK. This private residence is located in Hard, Austria and covers an area of 4,284 square feet.
The project is presented under the form of a structure with two cubes stacked on top of each other. Its design conjures up lightness, which contrasts with the dimension and the material used for building it –“heavy” exposed concrete. The play with the abstract continues in the finishing.
There are only two materials used: an immaterial white for the ceilings and walls mixed with the dark wood of the smoked oak for the floors, window frames and doors.
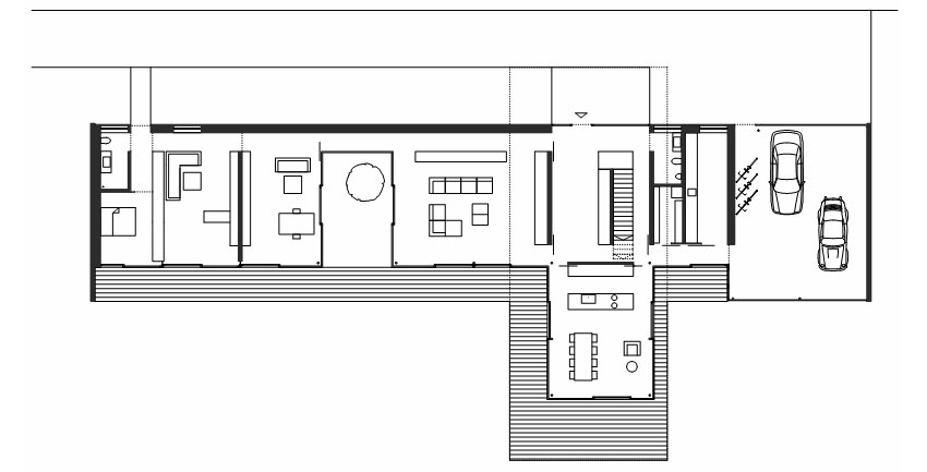
The ground floor hosts the living quarters that are connected to the garden through the dining room, which is in line with the upper story that comes out from the building one floor above.
The bedrooms positioned in the upper structure provide a panoramic view of the nearby lake thanks to the altitude and the orthogonal twist of the structure.
From the Dietrich | Untertrifaller Architekten:
The architectural solution stages a play of two cubes stacked on top of each other. Their delicate appearance conjures up lightness that contrasts with the dimension as well as the choice of material, “heavy” exposed concrete. This tension between the image of the house and the provoked experience-based knowledge of its “impossibility” induces fascination.
The play with the abstract that inspires the sculptural quality of the building is continued in the finishing. Mainly two materials are used: an immaterial white for ceilings and walls and the dark wood of the smoked oak that forms the floors and is also found in window frames and doors. The entrant immediately sees the spatial layout as it emulates the form of the building on the outside. From the entrance at the intersection between ground floor and the upper story placed in an orthogonal direction one floor above, a cross-shaped corridor layout can be distinguished on two levels.
The living quarters on the ground floor with a view of the garden are accented by the dining room that projects into the garden in line with the upper story that juts out of the building one floor above. The inserted light shaft opens to the office and a lodger flat. The bedrooms in the upper structure offer a panoramic view of the nearby lake due to the altitude and the orthogonal twist of the building.
Photos by Bruno Klomfar
















More Similar Articles Like This
Wonderful Yachting Club Villas at Elounda Beach by Davide Macullo Architects
Amazing Four Seasons Resort Bora Bora
Exceptional Coronado Bay Front Estate in California
Tips for Choosing the Right Blue Paint Color for Your Dining Room
Beach House CN – A Superb Contemporary Home in Peru
Gorgeous And Spacious Home In Sunset Strip
Vibrant Wood Tones: Explore a Spectrum of Spray Paint Colors!
The JKC1 House in Bukit Timah, Singapore