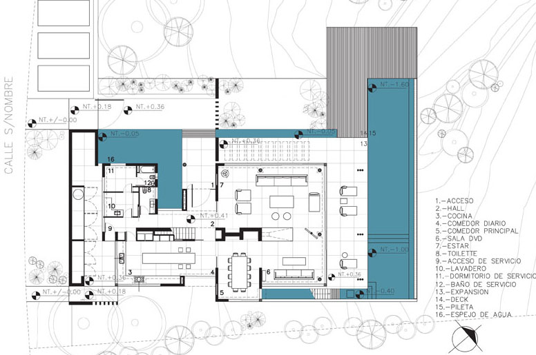
The Agua House located in Buenos Aires, Argentina was designed by Barrionuevo Sierchuk Arquitectas and combines modern architecture with the core element of the home – a rustic stone wall.
It’s a 4,840 sq. ft. residence designed for a couple with children who needed space and freedom of movement.
On the ground floor you will notice a program of very big reception areas protected by big wooden sliding doors, while in the first floor you will see the master bedroom and a small bedroom for the guests.
Basically, the house was created based on two stone walls that interact all over the home.
It has the name of Agua Home because it’s surrounded by water, agua in English meaning water.















More Similar Articles Like This
Outstanding Bodrum Houses in Yalikavak, Turkey
A Superb Italianate Mansion in California, USA
Best paint colors for the living room
Spectacular Luxury House in Sarasota, Florida by DSDG Inc. Architects
70 Shades of Green: Benjamin Moore’s Vibrant Paint Colors
Shadowed Depths: Vintage-inspired Paint Colors for Dark Basements
10 Different Types of Blue Paint Colors
Benjamin Moore Exterior Paint: Vibrant Shades for a Striking Home