Malvern House is a modern family home completed in 2011 by Canny Design for a client in Malvern, Victoria, Australia.
There were needed certain adaptations in order to accommodate a two and a half meter fall from the back of the terrain to the front, demonstrating in this way the flexibility of the home.
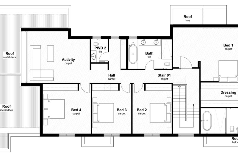
It’s a very spacious house that includes three living areas, four large bedrooms, a study and a two car garage.
The base plan suffered multiple additions that include an in-ground cellar with automated trap door, a large swimming poll surrounded by beautiful, irrigated landscaping, lighting and a decorative pond in order to ensure the perfect design of the site.
The family’s entertaining area and BBQ is set in the back of the house, where is protected by a cantilever roof.
This open and spacious residence fits perfectly into the urban landscape, mixing sophisticated looks with the latest technology, materials and systems such as a Bose sound system, Airphone audio-video intercom and alarm system.
In comparison with the general image of the house, the kitchen is quite simple with clean lines and fine finishes, being the perfect storage space for the whole family. The island bench which is clad in timber veneer matches the American Oak timber flooring, and stands as a beautiful piece of furniture to the space, capturing the sufficient amount of storage.
The bedroom was accessorized with full height sheer motorized curtains in order to have a good management of the natural light.
An oversized custom made skylight shelters a free standing bath, where natural light floods the ensuite by day and offers a bathing under the star experience during the night.
The pictures below will finish the work of convincing you of the preciousness of this house.

























More Similar Articles Like This
Wonderful Yachting Club Villas at Elounda Beach by Davide Macullo Architects
The Superb Villa Verai on Phuket Island, Thailand
Gorgeous And Spacious Home In Sunset Strip
Stunning Sustainable Home in Costa Rica by SPG Architects
Unique Click Clack Hotel In Bogota, Colombia
Superb Luxury Penthouse in Portomaso, Malta
Vibrant Wood Tones: Explore a Spectrum of Spray Paint Colors!
Spectacular Luxury House in Sarasota, Florida by DSDG Inc. Architects