Black Desert House is a project of Oller & Pejic Architecture and it looks like an oasis in the middle of the arid desert of California.
The architects started by taking into account the request of the client, who wanted this house to look like a shadow. The explanation is very simple: because in the desert area the sun if often extremely bright, the eye’s only resting place is the shadows.
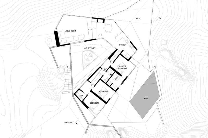
The core of this house is practically the inner courtyard, which is surrounded by the rooms that are arranged in a linear sequence from living room to bedroom with the kitchen and dining room in the center.
The dark color used for the exterior walls, gives the house a cave-like feeling and because of that during the day the views are more pronounced, and during the night the house completely dematerializes.
Photos by Marc Angeles
Cave-Like Black Desert House by Oller & Pejic Architecture






























More Similar Articles Like This
Stunning Banyan Tree Ungasan Bali in Indonesia
Lovelli Residence: Mediterranean-Style Dwelling in Bali
Best paint colors for the living room
10 Different Types of Blue Paint Colors
Pure Perfection: Discover the Top White Paint Colors for a Flawless Décor
Opulent Mandarin Oriental Hotel in Paris
6 Garden and Lawn Tips to Get Ready for Spring
Dreamy Oceanfront Chateau In West Vancouver, Canada