The second renovation project by MM++ architects in Hồ Chí Minh, Vietnam was focused on the Thao Dien House #2, and it was completed in 2014. The original building was very poor shape, and it was transformed into a fine example of comfort and modernism. Its original concrete structure remained intact, while its overall layout was redesigned extensively and received a new staircase position.
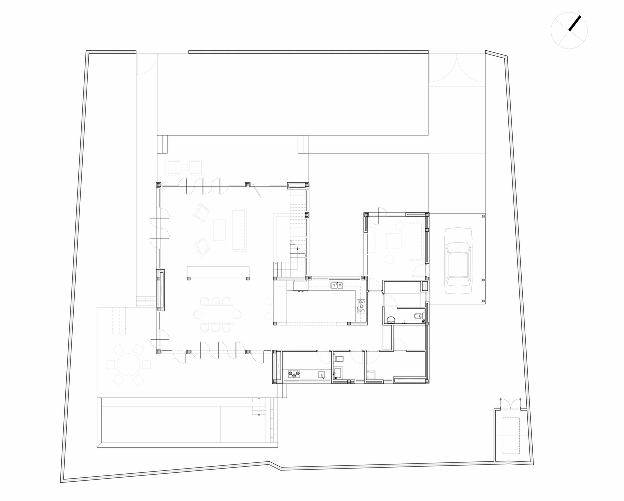
The residence was created using exposed concrete, recycled bricks and steel frame windows, all of which blend nicely into a contemporary, almost industrial look. The ground floor comprises the kitchen, dining room and living room, all of which are merged into a single space that opens up to the outdoors on three sides. The first floor features four bedrooms with timber sliding louvers that facilitate cross ventilation while controlling the amount of natural light that enters the rooms throughout the day.
Overall, the Thao Dien House #2 boasts 3,229 square feet of living space, and it represents a masterpiece of modern architecture.
From the architect:
Design and Built mission (architecture – interior – landscape).
This is the second villa of our “extreme renovation” project in east suburb of Ho Chi Minh City, District 2. Same as for our project Thao Dien house #1, starting from a poor quality existing construction, the villa has been turned into contemporary open spaces while keeping the entire existing concrete structure.
– The building has been reduced to its concrete frame and reshaped with a new foot print and a new staircase position.
– On the ground floor, living room, dining and kitchen are merged in one unique space fully open to the outdoor on three sides same our previous project, but this time with customized steel frame windows on pivot bringing a “retro-vintage” feeling to the design as well as the industrial look black steel staircase.
– On the first floor, four bedrooms with double brick wall insulated and timber sliding louvers to prevent from direct sun light and allow crossing ventilation.
Same as Thao Dien House #1, the existing house had no quality, adding no value to an expensive land with a lot of potential.
Where Thao Dien villa #1 was developing a strong focus on the “vegetal”, efforts on Thao Dien villa #2 have been focusing on creating a sense of the place with the use of recycled bricks, exposed concrete and steel frame windows.
Architects: MM++ architects
Location: Thảo Điền, Quận 2, Hồ Chí Minh, Vietnam
Area: 300.0 sqm
Project Year: 2014
Photographs: Hiroyuki OKI
Project Architects: My An PHAM THI
Construction Team: Cuong LAM QUOC, Triet LE HUU

















More Similar Articles Like This
Vibrant Concrete Floor Paint Colors to Elevate Your Space
Secluded Naladhu Island in Maldives
Green Gables Home In Fairfield, Connecticut, United States
Different Types Of Foundations For Summer Houses and Garden Buildings
Extraordinary Constance Halaveli Maldives Resort
The JKC1 House in Bukit Timah, Singapore
Saguaro Palm Springs by Joie de Vivre
Behr’s Brilliant Blues: 70 Shades of Stunning Paint Colors