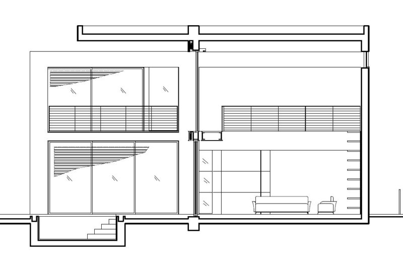
As its name suggests, this remarkable contemporary residence was built in the Bauhaus style. It is located on a historic avenue in the French Carmel neighborhood, in Haifa, Israel. Recently completed by Pitsou Kedem Architects, the two-story mansion offers 5,900 square feet of lavishly appointed living spaces.
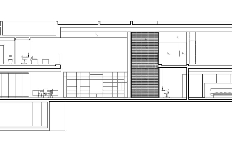
The Contemporary Bauhaus project features a large, open central space which interacts with all the secondary spaces around it. This area provides access to all the wings of the house and also to the central courtyard and pool. For an even more dramatic impact of this special area, the architect chose to coat it with concrete panels. He also added a library as a central motif, and large windows to illuminate the entire space.
A large glazed façade faces the lovely courtyard, naturally linking the indoor and outdoor areas. The street-facing façade was designed to blend in with the other 1950s residences in the neighborhood. It received a simple color scheme with different shades of grey and white. The element that sets this house apart, as a jewel of the contemporary era, is the floating upper roof. The architect didn’t want to force the fresh, contemporary style of the house into the landscape, so he chose to only give a hint of what the true spirit of the residence really is.
Each room offers different views of the surroundings, all beautiful in their own way. Characterized by a quiet and formal style, this home is tranquil, with a calm ambiance. During the day, the sun illuminates the house from different angles, playing fascinating games of light and shadow on all surfaces. As the night falls, strategically-placed artificial lights (especially those coming from the pool) continue the magical dance of shadows, for a mesmerizing effect. We definitely like what we see.
















More Similar Articles Like This
The Sophisticated Casa Villa Flamingo in Spain
Superb Luxury Penthouse in Portomaso, Malta
Benjamin Moore Exterior Paint: Vibrant Shades for a Striking Home
Gayton Road Residence by Paxton Locher Studio
These Top Tips Will Help You to Turn Your Garden into the Ultimate Glamping Site!
Pure Perfection: Discover the Top White Paint Colors for a Flawless Décor
Unique Click Clack Hotel In Bogota, Colombia
Seamlessly Apartment by the Beach by ZZ Architects