Boasting 2,152 square feet of space, the Y Duplex Penthouse is a lovely residence that was masterfully renovated by Pitsou Kedem Architects. It can be found in Tel Aviv-Yafo, Israel, and it features a selection of raw materials such as unpainted wood, exposed concrete and iron. The materials were chosen specifically evoke other projects signed by the same company, and we have to admit that the result is quite elegant.
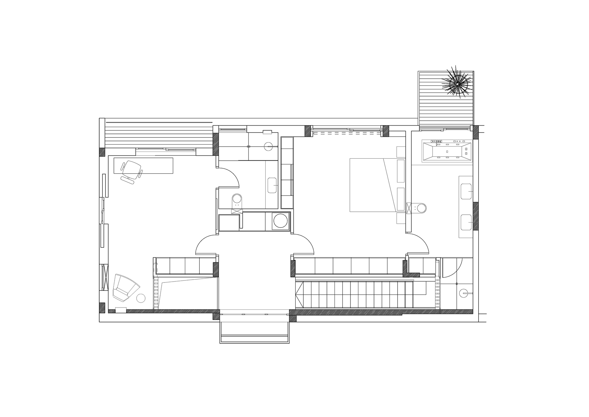
The two floors are linked by a newly implemented staircase that also has the role of ensuring natural illumination through skylights. This is a minimalistic abode that is adorned with a few colorful paintings complemented by books and art pieces signed by artists such as Guy Yanai.
And since the penthouse offers relatively small living areas, it makes sense that the architects would seek to implement some sort of continuity in order to create the illusion of extra space. The solution came in the form of poured terrazzo floors that were applied both inside and outside of the apartment.
From the architect:
This is a small yet complex project of a duplex apartment renovation that was, for the architects, an especially challenging project. How would it be possible to install meaning and architectural values to a roof top apartment in a “standard” uninspired design multi-story building located amongst a row of similar structures in one of Tel Aviv’s bourgeois neighborhoods
The apartment was designed to integrate with the architectural language and characteristics of other projects by the architectural firm and thus, using modern architectural values, it combines modern elements by using materials in their raw form: exposed concrete wall, iron stairs and furniture, a terrazzo floor, poured on-site and unpainted wood.
The space created by the new stairwell, divides the movement and the axis of the existing space in a way that creates a dramatic architectural cross section through the apartment, links the different levels and allows natural light to penetrate the building through glass skylights inserted into the roof of the upper floor.
The new cross section creates a double space with transparent glass and a system of moveable wooden slats that makes it possible to create a view between the spaces or to allow privacy and natural light control.
The restraint and scale of the apartment design avoiding the use of gimmicks make it into a “timeless architecture”.
The raw materials and the attempt to create an architecture that was both unfashionable and timeless is complemented by the books and pieces of art hung throughout the apartment including works by the artist Guy Yanai.
Despite the fact that the apartments has a small area, the spaces feel large and spacious. The wide and open views out to the scenery and in between the neighberhood buildings create the feeling of a light and airy space. The border between the interior spaces and the balconies is almost totally blurred by a thin glass panel system. The use of the same flooring, purred terrazzo, both inside and outside also contributes to this feeling of continuity.
Area: 200.0 sqm
Year: 2014
Photographs: Amit Geron
Design Team: Pitsou Kedem, Ran M. Broides.
Styling For Photographs: Eti Buskila











More Similar Articles Like This
Heavenly Lily Beach Resort & Spa In Huvahendhoo, Maldives
Outstanding Bodrum Houses in Yalikavak, Turkey
Extraordinary Constance Halaveli Maldives Resort
Behr’s Brilliant Blues: 70 Shades of Stunning Paint Colors
How Seattle Lawn Care Service Deals With Overgrown Lawns
Boracay Resort & Spa in the Fascinating Philippines
Pure Perfection: Discover the Top White Paint Colors for a Flawless Décor
Saguaro Palm Springs by Joie de Vivre