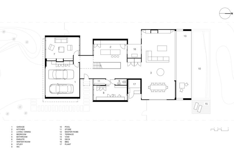
The Torquay House located in Torquay, Victoria, Australia was completed by Wolveridge Architects in 2012. Because of the coastal conditions here, the building had to be robust yet protective and to make the occupants feel safe and to enjoy good times here whether they are residents or weekenders.
It provides excellent views to the north and south and it consists of robustly finished containers. The spaces between these containers are essential for the program and to the resistance in time of the building.
Its robust appearance is compensated by the expression of finely considered detail and proportion.
Credit photography: Derek Swalwell




















More Similar Articles Like This
Santa Barbara Style Home in Paradise Valley, Phoenix
Behr’s Brilliant Blues: 70 Shades of Stunning Paint Colors
Gorgeous And Spacious Home In Sunset Strip
Spectacular Rooftop Apartment by Innocad
Astonishing El Tovar by the Sea
Pure Perfection: Discover the Top White Paint Colors for a Flawless Décor
Vibrant Wood Tones: Explore a Spectrum of Spray Paint Colors!
Exquisite Crossacres Mansion In Surrey, England