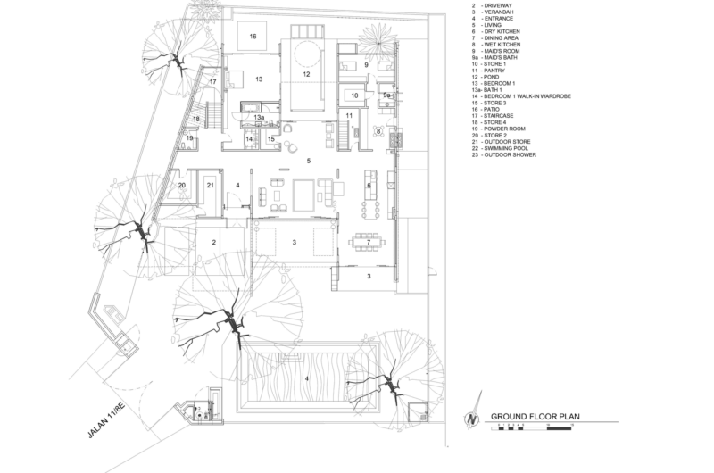
Located in the suburb of Petaling Jaya, the S11 house was built in 1960 and became ruinous over the years. Instead, a new project was conceived which was about to have as a central element a large tree canopy that would shelter all the rooms of the house.
The S11 house was created by ArchiCentre in order to achieve the highest level Platinum rating of Malaysia‘s Green Building Index (GBI). What makes it really special is its placement between five trees, three old and sculptural frangipanis, a big star-fruit and a coconut palm tree. It is clear north-south orientated, so it captures plenty of light through all its windows and openings. To minimize the heat absorption, the roof was made out of lightweight recyclable profiled steel metal sheets covered in a light off-white color.
For the residence to achieve the greenhouse status one of the most important elements is the wind turbine that provides “stack effect” ventilation. The rainwater collected on the canopy roof flows into the harvesting tanks and then is used for toilet flushing, gardening and car washing. Nothing is lost, everything is transformed.
The sliding glass walls permit air ventilation to take place and also open the whole internal living space to the outdoor footbridge.
With a lot of hard work and effort, the working team managed to keep the naturalness and the purity of the place, and also turned it into a perfectly livable, functional and modern home.
Photos by Lin Ho























More Similar Articles Like This
Loving Luxury at Mardan Palace Resort, Turkey
Pure Perfection: Discover the Top White Paint Colors for a Flawless Décor
Marvelous Anantara Dhigu Resort
Lawn Care Tips, The Basics For Each Season
Stunning Banyan Tree Ungasan Bali in Indonesia
Plain Geometric Residence Designed by Lidija Dragisic
Shadowed Depths: Vintage-inspired Paint Colors for Dark Basements
Spectacular Luxury House in Sarasota, Florida by DSDG Inc. Architects