This contemporary house in Thảo Điền, Ho Chi Minh, Vietnam was designed by a firm named MM++ architects. It was originally an old and not very impressive art deco residence, but it was renovated masterfully in 2014 and is now able to provide more than adequate living conditions to its owners. The layout consists of a white cube that features a pair of vertical vegetation walls at its front and rear.
The plants provide much needed privacy to the bedrooms without interfering with natural ventilation, and they also allow the entire abode to blend seamlessly with its surrounding environment. The ground floor incorporates the kitchen, dining area and living room, all of which are merged into a single space that flaunts a direct link to the outdoors on 3 sides. The main highlight of the living room is a beautiful staircase that boasts seemingly floating steps.
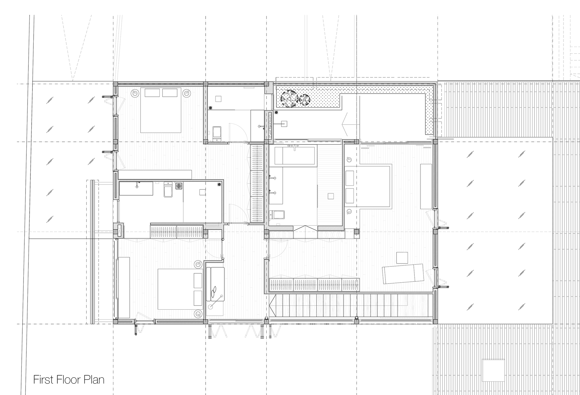
The initial house featured 4 bedrooms on its first floor, but the architects decided to reduce this number to 3 in order to make each bedroom more spacious and more comfortable.
From the architect:
This project is a renovation of a villa located in east suburb of Ho Chi Minh City, District 2. The intention was to turn the existing construction, a “pastiche” art deco, into a contemporary villa with clean lines and open spaces while keeping the entire existing concrete structure. The cost saving, which represents around 30% of total construction cost and the time saving on the construction schedule was a huge benefit for the client, an investor. Therefore, with balancing the cost, it was possible to add new elements to the construction.
The building has been reduced to his most minimal expression, a white cubic shape with two vertical vegetal walls added on the front and back of the house in order to bring privacy for the bedrooms and allowing large openings for natural ventilation without crossing views. The vertical garden “extends” the surrounding vegetation onto the walls and makes the house “disappearing” into the landscape. It creates a strong visual connection between the house and the garden and gives an identity to the place.
On the ground floor, living room, dining and kitchen are merged in one unique space fully open to the outdoor on three sides, bringing the garden inside the house. Swimming pool and decking have been reshaped as an extension of the interior space. The staircase has been relocated for a better distribution of the first floor and creates the main feature of the living room with a floating steps design. On the first floor, three bedrooms instead of the four existing in order to gain space to create a real master suite.
Starting from a poor existing space quality, enclosed, with no connection to the garden, this project is an experiment to demonstrate how it can be versatile and fun to “play” with an existing structure and to turn the construction into a radically different layout and design, revealing better spaces, adding value to the place and proposing a life style closer to nature.
Project Architects: My An PHAM THI, Michael CHARRUAULT
Construction Team: Cuong LAM QUOC, Triet LE HUU
Area: 280.0 sqm
Year: 2014
Photographs: Hiroyuki OKI
















More Similar Articles Like This
Pure Perfection: Discover the Top White Paint Colors for a Flawless Décor
Loving Luxury at Mardan Palace Resort, Turkey
Lovelli Residence: Mediterranean-Style Dwelling in Bali
Gorgeous And Spacious Home In Sunset Strip
Best paint colors for the living room
Benjamin Moore Exterior Paint: Vibrant Shades for a Striking Home
Beautiful Apartment in Stockholm for $1 Million
Lawn Care Tips, The Basics For Each Season