Wallflower Architecture +Design have completed the Far Sight House in 2013. The structure is located in Bukit Timah, Singapore and is sited on a high ground, providing views overlooking the more affluent residential addressed in Singapore.
As the clients wanted, the project was designed as a home of two stories, with an attic, a roof terrace facing the rear and overlooking the valley.
The facade of the house boasts operable glass doors and windows, operable vertical timber louvers emphasized by clear glass bay windows, horizontal aluminum sunscreen and vertically drawn blinds. That’s why the owners can control the amount of sun screening, the breeze and the view and it may not be about what the owners want to see, but what the neighbors can see of them.
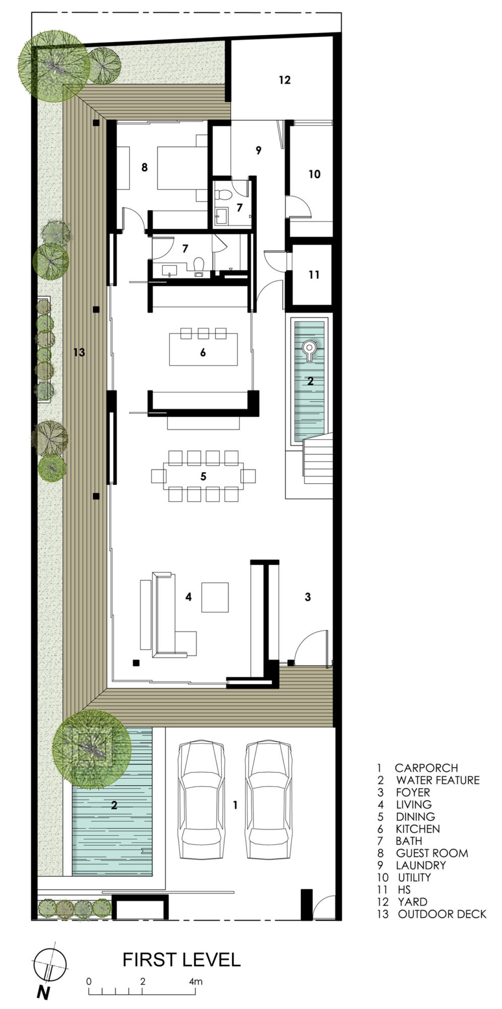
On the first level of the house we find the living room, the dining room, the kitchen, the guest room and a small children’s pool. The second level shelters the family room with three bedrooms for the adults and their two children.
The casual attic terrace with its stupendous views that is the literal “light house” is the place where the owners like to host most of their parties, to see and be seen from all around.

















More Similar Articles Like This
Wonderful Yachting Club Villas at Elounda Beach by Davide Macullo Architects
Pure Perfection: Discover the Top White Paint Colors for a Flawless Décor
Benjamin Moore Exterior Paint: Vibrant Shades for a Striking Home
Astonishing El Tovar by the Sea
Opulent Mandarin Oriental Hotel in Paris
Different Types Of Foundations For Summer Houses and Garden Buildings
6 Garden and Lawn Tips to Get Ready for Spring
Santa Barbara Style Home in Paradise Valley, Phoenix