This is a 87-sq-m house built by BAK Architects in the forest region of Mar Azul, Buenos Aires. The terrain in this region is sloping and covered with big pine trees. However, this certain lot has a three meter high slope.
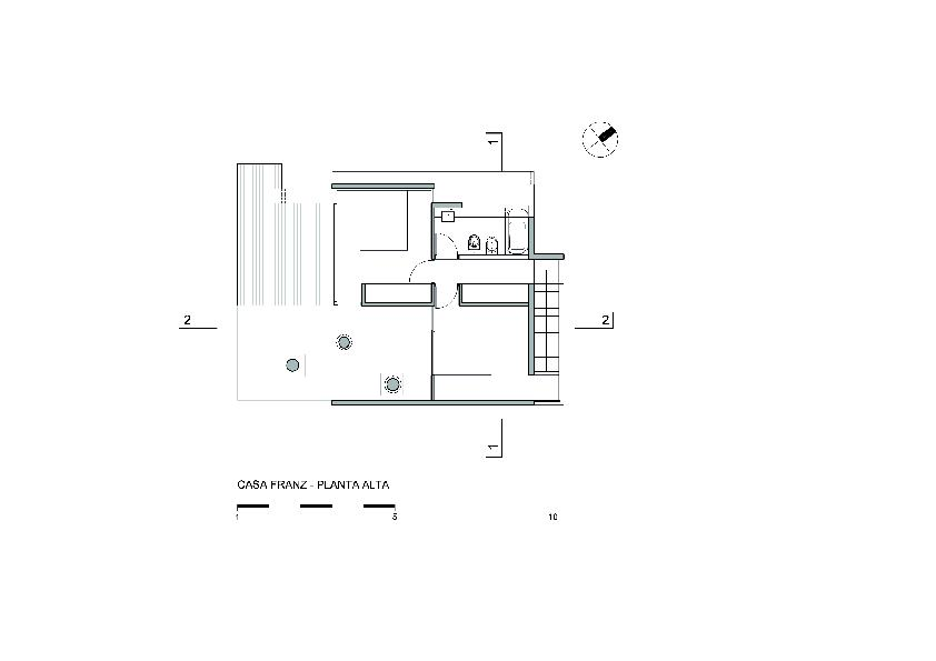
The residence was designed for a couple with children and they wanted a maximum of social space and a minimum area for the two bedrooms and bathroom. The exterior resembles the other houses in the region, its shape being given by the small lot size and the characteristics of the terrain. As a solution, this home has two rectangular shaped floors, limiting the exterior space used and the effect on the forest. Both levels are connected through a double-height space situated at the entrance. Here there is the stairway that leads to the bedrooms, the view from this place being emphasized by glass walls and large glass windows.
The elements composing the house are glass, wood and exposed concrete. Concrete is the main material, since it is also used for some parts of the furniture.
Photos by Gustavo Sosa Pinilla



















More Similar Articles Like This
Extraordinary Constance Halaveli Maldives Resort
Behr’s Brilliant Blues: 70 Shades of Stunning Paint Colors
Superb Luxury Penthouse in Portomaso, Malta
Astonishing El Tovar by the Sea
Best paint colors for the living room
Stunning Banyan Tree Ungasan Bali in Indonesia
Benjamin Moore Exterior Paint: Vibrant Shades for a Striking Home
Vibrant Wood Tones: Explore a Spectrum of Spray Paint Colors!