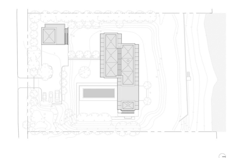
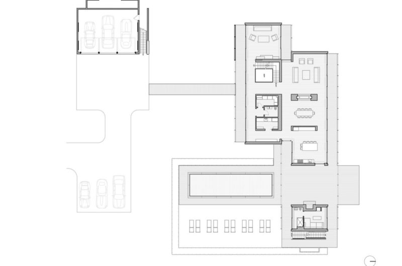
If you wanted to see a really special house then this is the chance for you. The Bay House in New York designed by Roger Ferris + Partners is located on the Long island coastline just to capture special water views and also as much natural light as the day offers. Sustainability is its main characteristic, combined with geothermal design, solar shading strategies and also spatial planning.
As you’ll further see, this is quite a simple design, airy and very spacious. It’s perfectly habitable but if you stop for a second and think, this place can be turned into an office building.
Photos by Arch Photo Inc




























More Similar Articles Like This
Best paint colors for the living room
Opulent Mandarin Oriental Hotel in Paris
Behr’s Brilliant Blues: 70 Shades of Stunning Paint Colors
Vibrant Concrete Floor Paint Colors to Elevate Your Space
Unique Click Clack Hotel In Bogota, Colombia
Superb Luxury Penthouse in Portomaso, Malta
Lawn Care Tips, The Basics For Each Season
Beach House CN – A Superb Contemporary Home in Peru