The Marcus Beach House is a 2,798 square foot home that was completed by BARK Design Architects in 2009. It can be found in Queensland, Australia, and as its name suggests, it is located in close proximity to the beach, which is always a big plus. Its exterior design is a modern one that includes large windows and neutral colors, while its interior arrangements give off a feeling of elegance and comfort that’s hard to match.
Highlights include a welcoming living room that features a modern sofa, a wooden coffee table and a flat screen TV, but what’s even more impressive is that this living room is linked to a wooden deck and forms a covered double height outdoor room. This room can be used for socialization and relaxation purposes no matter the season thanks to a timber batten screen that effectively filters sunlight.
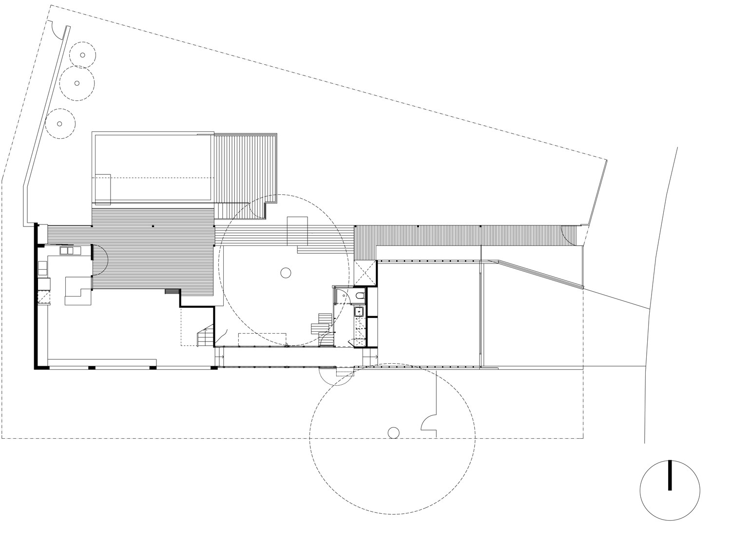
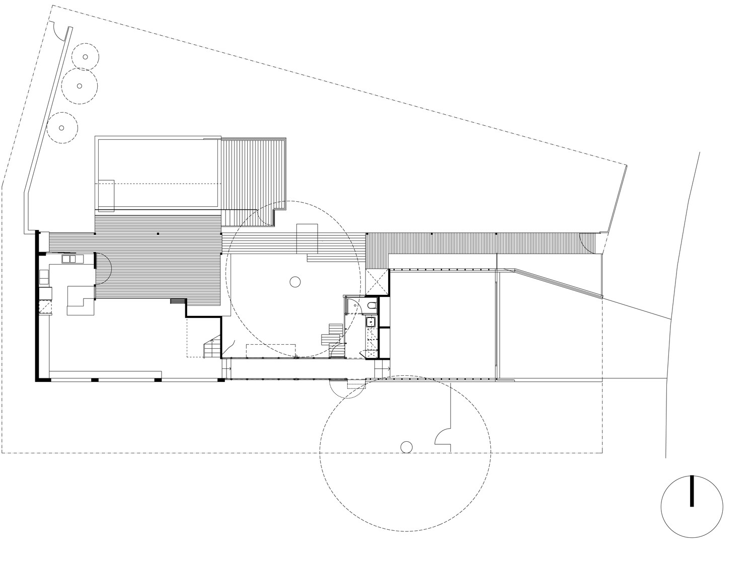
The outdoor swimming pool also deserves a mention, as does the staircase that links the 2 levels of the abode and the numerous forms of vegetation that dot the courtyard.
From the architect:
The Marcus Beach house celebrates a natural, coastal setting providing its occupants with an inextricable relationship to the landscape and sensitive surrounding environment. The dwelling explores lightness, filtering natural breezes, layers of transparency and integrating indoor / outdoor spaces within dynamic patterns of light and shadow, being a simple frame to enable a contemporary sustainable lifestyle to unfold.
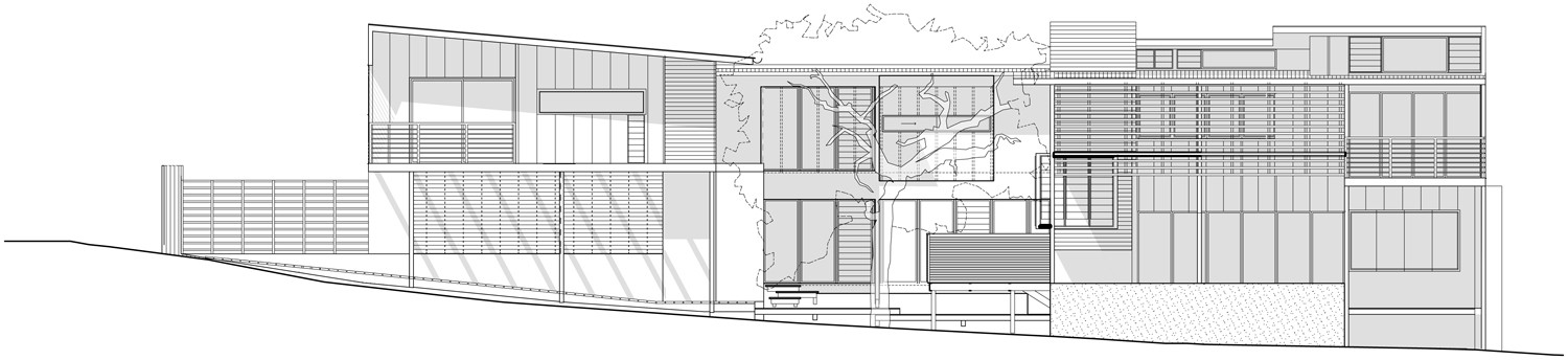
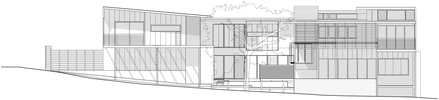
Whilst feeling like a ‘beach house’ sited 250 meters away from Marcus Beach, the basic ‘pavilion’ plan was sketched out in the sand during an early site visit: a simple diagram of two pavilions placed either side of a venerable 100 year old Moreton Bay Ash that takes centre stage to the scale, proportions and life of the house around it. The pavilions sit lightly on the site and are linked by a transparent bridge in an arrangement that opens all the spaces to the light, breeze and garden views of the north. The garden is protected by a perimeter wall wrapped in endemic vines providing an acoustic ‘green’ buffer to a nearby busy road.
On approach from the street, the sloping terrain naturally guides an axial timber boardwalk under a simple timber pergola structure arriving in the courtyard opposite the Moreton Bay Ash. The main pavilion to the west accommodates living spaces focused around a double height deck space overlooking the swimming pool and northern garden. The Master Bedroom suite is accessed via a polycarbonate clad stair tower that is by day a contemplative space and by night, a lantern. The Moreton Bay Ash casts shadows onto the polycarbonate further animating the edges of the courtyard and bringing the landscape inside the house. The recent additions of a study ‘pop out,’ enclosed passage link below the bridge, Laundry and Powder room further animate the edges of the courtyard space whilst responding to the needs of its new occupants.
The house is open and light and possesses simple sustainable design principles to passively defend the occupants from the elements. Windows and doors are strategically positioned to capture the prevailing breezes whilst roof overhangs are generous protecting the house from direct summer sunlight. Air conditioning has not been installed in the Marcus Beach House nor is it desired. Artificial lighting is kept to a minimum due to the generous amount and position of glazing, particularly facing north. The roof over the Master Bedroom pavilion rises to the north providing a band of high level, operable, clerestory glazing capturing daylight and allowing any warm air to escape, setting up an effective ‘stack effect’ natural cooling process.
The connection between the deck and living spaces is dynamic and direct. As the heart of the house, the covered double height outdoor room is actively used all year round as dappled sunlight is filtered through a timber batten screen hung below the roof structure. Indoor and outdoor realms are connected through an interlocking series of alcoves and nooks like a low edge deck seat and reading nook pop-out located off the stair landing. The courtyard and Moreton Bay Ash are a focal point in which almost all rooms within the dwelling enjoy a connection.
Architects: BARK Design Architects
Location: Queensland, Australia
Architects: BARK Design Architects
Structural Engineer: Meecham Engineers
Builder: Wall’s Quality Homes
Area: 727.0 sqm
Project Year: 2009
Photographs: Christopher Frederick Jones













More Similar Articles Like This
Behr’s Brilliant Blues: 70 Shades of Stunning Paint Colors
Boracay Resort & Spa in the Fascinating Philippines
5 Ways to Turn Your Yard Into a Fancy Space
6 Garden and Lawn Tips to Get Ready for Spring
Plain Geometric Residence Designed by Lidija Dragisic
Dreamy Oceanfront Chateau In West Vancouver, Canada
Loving Luxury at Mardan Palace Resort, Turkey
Vibrant Wood Tones: Explore a Spectrum of Spray Paint Colors!