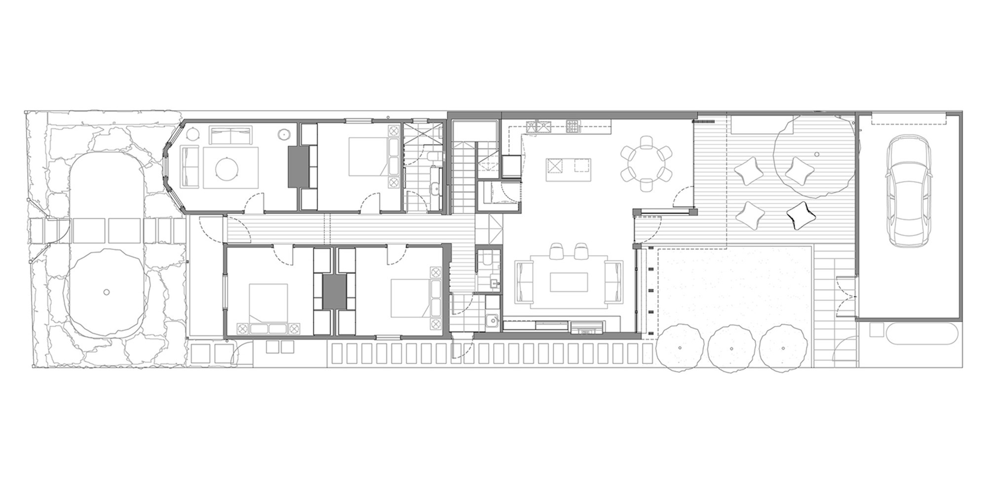
The Armadale House 2 was initially a modest Victorian-style home that received a complete makeover courtesy of Mitsouri Architects. It offers 2,690 square feet of living space and comprises a new addition as well as a beautiful rear garden. The private spaces are located at the upper floor, and they include a terrace and a luxurious master suite. Both feature controlled views of the garden thanks to a fine timber screen.
The ground floor comprises an open plan living room with polished concrete floors, crisp white walls, floor-to-ceiling glazing and timber joinery elements. This space gives off a feeling of warmth and coziness thanks to the choice of natural materials and clean textures. The dark zinc steam cladding, bespoke window joinery and timber features blend nicely and further contribute to a clean, welcoming ambiance.
From the architect:
This refurbishment and extension to an existing Victorian style house in Armadale focused on the creation of a discreet new addition to make the most of a compact site. We proposed a 2 storey building form with a compact footprint to retain as much of the rear garden as possible.
The upper floor houses a master suite and terrace designed as fully private spaces with controlled views of the rear garden through a fine timber screen. The first floor is set back to create a recessive building element when viewed from the rear garden and neighbouring property.
An open plan living room at ground floor features polished concrete floors, warm white walls, refined timber joinery elements and floor to ceiling glazing. A clean, natural palette of materials is used to bring texture and warmth to the space whilst still allowing the clients to personalise it as they wish. Natural timber elements, dark zinc standing seam cladding and bespoke window joinery give the building a crafted and enduring architectural quality.
Architects: Mitsouri Architects
Location: Armadale VIC 3143, Australia
Area: 250.0 sqm
Photographs: Michael Kai Photography
Builder: Malford Construction
Structural Engineer: MR Anderson Consulting Engineers
Landscape Designer: EngineersBen Scott Garden Design
Land Surveyor: Neil Webster & Associates
Building Surveyor: Reddo












More Similar Articles Like This
Heavenly Lily Beach Resort & Spa In Huvahendhoo, Maldives
Stunning Banyan Tree Ungasan Bali in Indonesia
Saguaro Palm Springs by Joie de Vivre
Best paint colors for the living room
Benjamin Moore Exterior Paint: Vibrant Shades for a Striking Home
Outstanding Bodrum Houses in Yalikavak, Turkey
Secluded Naladhu Island in Maldives
Pure Perfection: Discover the Top White Paint Colors for a Flawless Décor