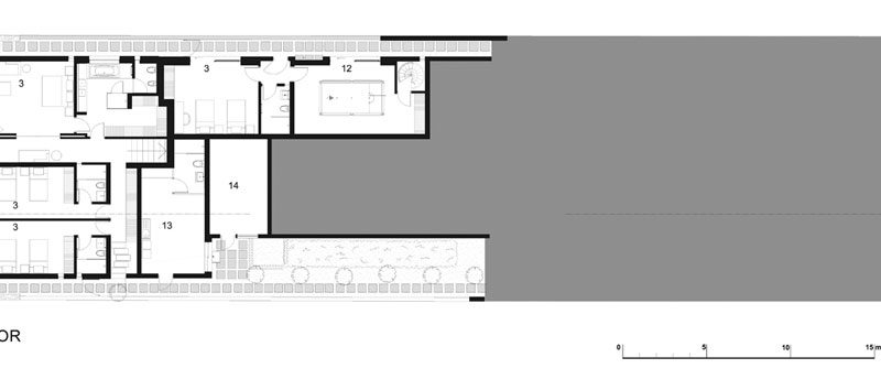
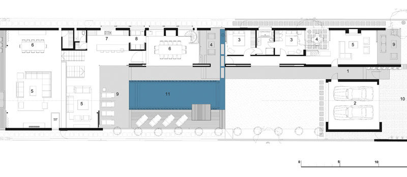
One of SAOTA‘s many great projects is the beautiful Voelklip House in Hermanus, Western Cape, South Africa. It was built on a long and thin lot with a gentle slope. The topography of the site had a major role in establishing the design of the house.
Among its best features are the split level living space, the double volume kitchen and family room, the sunny and wind-free main garden, the internal garden, pool and terraces, and the spectacular sea views. This is an ideal home for people who enjoy openness but also need a great deal of privacy.












More Similar Articles Like This
Gorgeous And Spacious Home In Sunset Strip
Pure Perfection: Discover the Top White Paint Colors for a Flawless Décor
Exceptional Coronado Bay Front Estate in California
These Top Tips Will Help You to Turn Your Garden into the Ultimate Glamping Site!
Spectacular Rooftop Apartment by Innocad
Astonishing El Tovar by the Sea
A Superb Italianate Mansion in California, USA
Plain Geometric Residence Designed by Lidija Dragisic