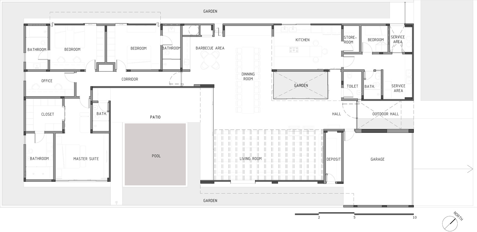
Malva House was built within a gated community in Brasilia in 2014 following a design by Bloco Arquitetos. It boasts 3,939 square feet of living space and spreads on a single level according to its owners’ requirements. The most important areas of the abode are focused around a central courtyard that brings plenty of natural light within while offering fantastic relaxation opportunities. The living areas open up completely to the courtyard, while the bedrooms open up to the side of the lot for improved privacy.
The social spaces such as the living room, dining area and kitchen are all a part of a single continuous space that is defined by a central garden. The architects replaced the bricks in the central hall with large glass bricks that welcome natural light while offering small glimpses of the courtyard. In the social areas, the natural wood cladding in Tonka bean comprises the air conditioning systems as well as the lighting facilities for the dining table and circulation spaces.
From the architect:
The site is located within a gated community in Brasilia, outside the urban context of the city and flanked by other houses. We use the highest occupancy rate allowed so as to enable the deployment of the house on a single level, as per the desire of the clients. We explore the views for the interior spaces of the site and create a central courtyard around which revolve the programmatic spaces. The living areas are open directly onto the courtyard, while the bedrooms turn their backs on it and open to the side of the lot. The social rooms of the house are organized in a continuous space, organized by an open central garden.
We seek to highlight differences between the main building materials of the house so as not to create a monolithic volume. We seek to obtain expression of the architecture through a composition of different parts.
The solid brick wall has only a sealing function and has no structure or embedded systems. In the private hall part of the bricks were replaced with massive glass bricks, made especially for the project. These bricks bring natural light and allow small views of the courtyard. The sealing of the tower that houses water tanks and AC condensers consists of the same solid bricks, but their layout is like a “twist” that leaves empty spaces between the pieces and promotes natural ventilation and lighting.
The painted brick walls assume the functions of embedding facilities and part of the concrete structure, and define the secondary spaces of the house such as side walls and garage. The concrete beams are exposed around the entire exterior of the house, crowning the composition. The concrete pillars are sometimes exposed along the walls of solid brick, sometimes embedded in the masonry walls.
The natural wood cladding (tonka bean) in social areas is a surface structured internally by wood and steel beams. The cladding contains air conditioners, facilities and lighting in the dining table and circulation areas. In the sofas and armchair area the cladding is higher, directly on the ceiling and leaving exposed parts of the beams of its internal structure. These beams form a pergola where the indirect lighting system is fixed.
Glass bricks were designed by the office and made by gluing several clear glass slides.
Architects: Bloco Arquitetos
Location: Brasília – Distrito Federal, Brasil
Project Architects: Daniel Mangabeira, Henrique Coutinho e Matheus Seco
Co-Autora: Tatiana Lopes
Project Area: 366.0 m2
Project Year: 2014
Photographs: Joana França
Manufacturers: By Silva, Concresteel, Dessine, IndusParquet, Palimanam Pedras, Vidraçaria Planalto
Collaborators: Guilherme Mahana, Bruno Pessoa, Luciana Ribeiro, Victor Machado
Structures: André Torres
Building Services: Nelso Kunrath
Landscape: Rosalba Paisagismo
Construction: Daniella Malva e Gilmar Guimarães














More Similar Articles Like This
Heavenly Lily Beach Resort & Spa In Huvahendhoo, Maldives
Saguaro Palm Springs by Joie de Vivre
The Superb Villa Verai on Phuket Island, Thailand
Exceptional Coronado Bay Front Estate in California
Secluded Naladhu Island in Maldives
The JKC1 House in Bukit Timah, Singapore
A Superb Italianate Mansion in California, USA
Pure Perfection: Discover the Top White Paint Colors for a Flawless Décor