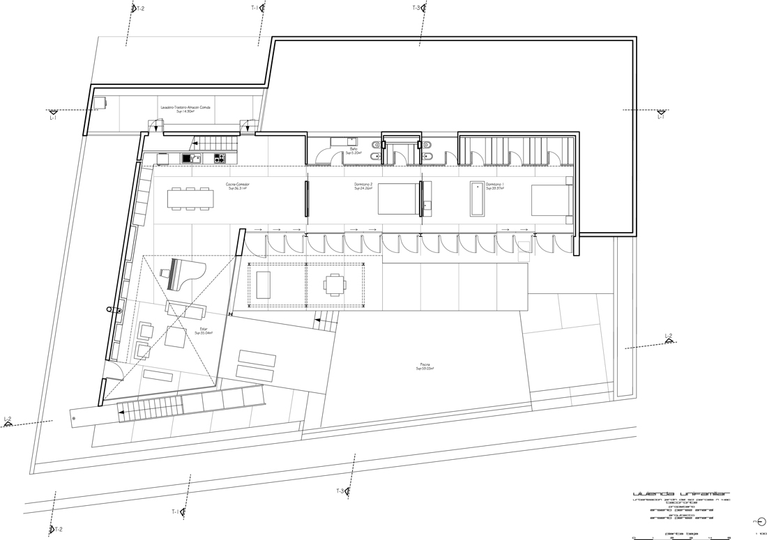
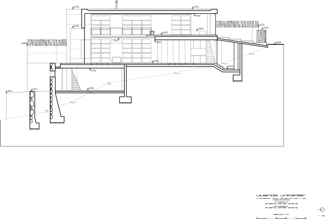
Boasting exquisite panoramas of Mount Teide and of Tenerife‘s northern coast, the House At Jardin Del Sol was completed in 2005 by Corona y P. Amaral Arquitectos. It consists of a monolithic volume made out of glass and concrete, which rests upon a timber platform located at the edge of a 984-foot cliff. The service areas as well as the bedroom are housed within a rectangular volume, which is connected to a double-height volume. This double-height space comprises the studio, kitchen and living room.
The residents also enjoy access to a modern gymnasium, which was inserted at a basement level that can be reached via an outdoor terrace. The terrace flaunts an infinity swimming pool and is shaded thanks to a wood and steel freestanding canopy that enhances the home’s modern feel. In order to ensure the privacy of the inhabitants, the architects implemented timber shutters in the bedroom as well as a canvas-based solution in the living room.
From the architect:
The basic idea of the project consists in the location of a monolithic concrete and glass volume over a timber platform located at the edge of a cliff in order to enjoy the amazing view of the 300m cliff, a 1000m long black sand beach, mount Teide and all the north coast of Tenerife island.
Bedroom and service areas are located in a one storie rectangular volume which enters into a double high volume containing the living-room, studio and kitchen. Both volumes organize an L-shape around the black paddle located at the edge of the platform so water surface gets mixed with the one of the sea, so all the areas of the house enjoy the views underlined by wood and water.
A gym is located in the basement with direct access from the terrace and views to the inside of the pound through a glass wall.
The interior and exterior finishing of the closed volume consists in treated concrete while complete walls are used in the facades facing the views. Protection is solved with timber shuts in the bedroom area and outside canvas stores in the living room.
A steel and wood freestanding canopy provides shadow to the central part of the terrace.
Gardening, based in the use of local cliff species, is located in the slope between the street and the built volume so the house seems to be inserted into the natural cliff .
Architects: Corona y P. Amaral Arquitectos
Location: Tenerife, Canary Islands, Spain
Architects: Corona y P. Amaral Arquitectos
Consultants: DD7 Aparejadores, S.L. (José Manuel Alonso Delgado y Fermín Gutiérrez Hernández ), Diego Estévez
Contractor: Construcciones Francisco Rodríguez
Structures: Arquiestructuras Tenerife (Benjamín Cova), Dionisio Castro
Garden: Poa Jardinería (Eduardo Zárate)
Client: Arsenio Pérez Amaral
Site Area: 626,79 sqm
Area: 389.0 sqm
Project Year: 2005













More Similar Articles Like This
6 Garden and Lawn Tips to Get Ready for Spring
10 Different Types of Blue Paint Colors
Exceptional Coronado Bay Front Estate in California
Spectacular Luxury House in Sarasota, Florida by DSDG Inc. Architects
Superb Luxury Penthouse in Portomaso, Malta
Shadowed Depths: Vintage-inspired Paint Colors for Dark Basements
Behr’s Brilliant Blues: 70 Shades of Stunning Paint Colors
Secluded Naladhu Island in Maldives