A picturesque site, a blend of modern living and natural beauty. We’re talking about the Lakeview Residence in Austin, Texas – a luxurious 5,900 square foot home that will leave you breathless. The house was built in 2011 for a family of four and is flanked by multiple mature oak trees that help create a warm and natural ambiance. Furthermore, In order to prevent the relocation of several trees on the site, the architects decided to incorporate them into the home’s layout.
This is a home that was designed to cater to the needs of an active family. It boasts several gathering areas that allow its residents to socialize, relax and have fun in a warm and comfortable environment.
The modern and classic furnishings are complemented by 19th Century Persian carpets and artful décor elements in the form of mid-century sculptures and paintings. The main color palette that adorns the interiors involves a combination of orange and blue.
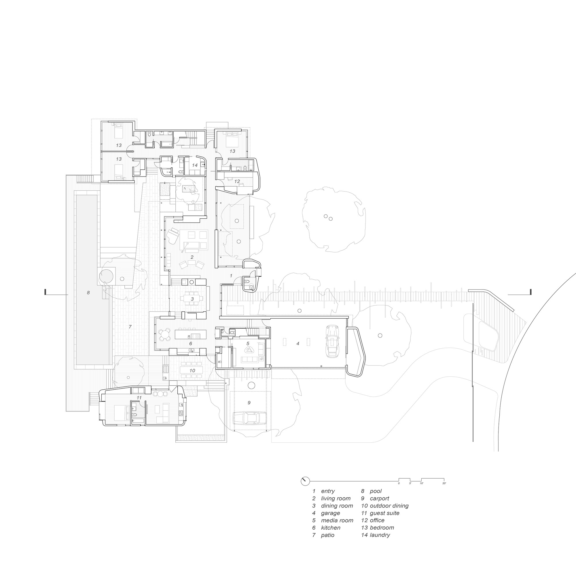
Highlights include interior fireplaces, large sofas, an outdoor patio and a large swimming pool.
Related links: Movers in Austin TX
From the architect:
Architecture occurs at the site of conflicts: where the desire for view conflicts with the desire for protection from the Western sun, where the desire for Lightness conflicts with the requirements for structure, where the desire for Mystery conflicts with Pragmatism, where the desire for Connection conflicts with the desire for Privacy, and where the desire for Permanence conflicts with the desire for Serendipity. In the Lakeview Residence, these conflicts provided the direction for the design.
An unparalleled view west, over the Bright Leaf Preserve and up the Colorado River, and the desire to live casually amidst a collection of mature live oak trees combined to make a powerful circumstance for this family of four. The new house emphasizes view and a dynamic spatial sequence while at the same time creating an abstract backdrop for the serendipity light, circumstance and view.
The visitor arrives, meandering under a grove of ancient trees into an intimate entry sequence of limestone, vertical cypress and verdant planting. Still unaware of the expansive panorama, views are revealed slowly – with carefully framed vistas inviting expectations of what is to come, and the pursuit of which leading to new discoveries.
An unmitigated ceiling plane provides a surface for reflected lighting and creates a sense of continuity while a delicate window wall accentuated by monolithic corner glazing connects the interior to the out-of-doors. Inside, a rich palette of materials, furniture, and carefully detailed cabinetry add a sense of finesse to the ensemble. The home is designed to suit the needs of an active family. Generous gathering spaces intertwine and provide a powerful setting for entertainment and family gathering, while smaller spaces host a more intimate retreat. Rooms are further defined with 19th Century Persian carpets, classic & contemporary modern furnishings, and a collection of local, mid-century sculpture & painting that offer points of stasis to the compelling and omnipresent view. An orange/blue color story appears throughout the house, which is in turn punctuated with our purpose-built furniture such as a sideboard made from a colossal walnut plank, or a study paneled in a unique pattern of traditional moldings laid vertically and side-by-side.
The site at Lakeview – where the trees give way to a powerful view – very much informed the form of the home. Trees, view and building interact: the ubiquitous ceiling plane gives way to the sinuous oaks passing through, the foundation spans across roots and open decks allow for the penetration of water to preserve the trees’ root systems, and expansive and intimate view is embraced everywhere. As one approaches the entry a view through the house gives a hint of the view beyond. Inside, expansive glazing opens the home to the vista while the ceiling plane continues to the exterior to afford protection from the sun and add to the sense of continuity from the interior to exterior.
Oriented for optimal cross ventilation and protection from the sun without eschewing the view westward, the Lakeview house also utilizes geothermal HVAC systems, a photovoltaic array, reflective TPO roofing, cellular foam insulation, tankless water heaters and FSC certified and reclaimed woods throughout the building. The home also takes advantage of the tree canopy to provide additional shading and carefully placed skylights bring diffused daylight into the home to help reduce reliance on electric lighting. Moreover, the decision to live centrally and work from home underlines a further commitment to a sustainable lifestyle.
Paramount for our clients was the construction of a home that would be simultaneously modern and intimate – expansive and cozy – and the design arose out of a close partnership of working together. In a recent interview, the client noted: “…others often tell us that they are pleasantly surprised that a modern home can be so warm and family friendly. That feedback is especially heartening given that, from the beginning, that was our goal.”
Architects: Alterstudio Architecture
Location: Austin, TX, USA
Design Team: Kevin Alter, Ernesto Cragnolino, Tim Whitehill, Matt Slusarek, Jessica Connolly, Joanna Hartman
Collaborators: Mark Word Design
Area: 5900.0 ft2
Project Year: 2011
Photographs: Casey Dunn, Whit Preston, Patrick Wong
















More Similar Articles Like This
Exploring the New World of Luxury Hoteling
Unique Click Clack Hotel In Bogota, Colombia
Superb Luxury Penthouse in Portomaso, Malta
Lawn Care Tips, The Basics For Each Season
Heavenly Lily Beach Resort & Spa In Huvahendhoo, Maldives
Pure Perfection: Discover the Top White Paint Colors for a Flawless Décor
Marvelous Anantara Dhigu Resort
Gayton Road Residence by Paxton Locher Studio