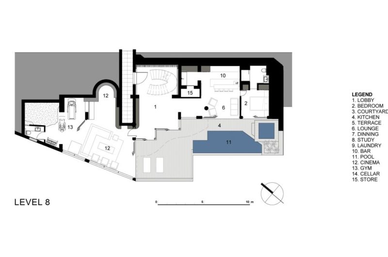
The Clifton View 7 in Cape Town, Africa was designed by Antoni Associates. The wish of the owners was to transform a double-level apartment into a home with four bedrooms, an en-suite, a gym, an entertainment cocktail bar, a cinema room and a wine cellar.
It offers incredible views over the Atlantic Ocean, the Clifton beaches and the Twelve Apostles mountain range.
The apartment can be accessed through the upper level. The dining area acts like a connection point between the spiral staircase and the entertainment space.
A lot of styles and ideas were mixed together to create a unique interior design and to give the apartment its own personality.
From the infinity pool you can see the expanse of the Atlantic City. Isn’t this beautiful or what?




















More Similar Articles Like This
Shadowed Depths: Vintage-inspired Paint Colors for Dark Basements
Exquisite Crossacres Mansion In Surrey, England
The JKC1 House in Bukit Timah, Singapore
Loving Luxury at Mardan Palace Resort, Turkey
6 Garden and Lawn Tips to Get Ready for Spring
Boracay Resort & Spa in the Fascinating Philippines
Outstanding Bodrum Houses in Yalikavak, Turkey
Opulent Mandarin Oriental Hotel in Paris