The fabulous residence that we are about to present was sketched out by a firm called Saraiva + Associados, and it can be found in Nova Lima, Minas Gerais, Brazil. Completed in 2011 under the watchful eye of Architect Marcelo Montoro and with input from Piantina Architecture, this residence is a true symbol of opulence and sophistication.
We’ll start off by describing the exquisite outdoor areas, as they feature ample opportunities for relaxation and fun thanks to a series of facilities such as a tennis court, a swimming pool and a playground for the little ones. The walls were created using a special red-colored local stone that becomes even more intensely colored when it is touched by the rays of the sun.
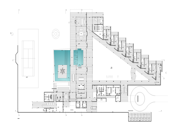
Inside, the Nova Lima House is divided into 4 different blocks that comprise the public, social, entertainment and home employee areas. Block 1 includes the main accommodations such as the 8 bedroom suites, a restroom and a studio. Block 2 is a fun and welcoming place that features a home cinema as well as a heated swimming pool that tempts with memorable moments of relaxation. The third block has a playing area, a spa and a fully equipped kitchen, while the fourth block includes accommodations for the home employees as well as a second separate residence.
From the Saraiva + Associados:
Luxury and exuberance are the right words to describe this house in Nova Lima, 22 km (13.7 mi) from Belo Horizonte, capital of Minas Gerais, Brazil. The project was developed by S+A Brazil, under the leadership of Architect Marcelo Montoro, and in partnership with Piantina Architecture, responsible for the interior design project. The house is divided in four distinct blocks, interconnected through a special steel material, coated with reflective glass. In the middle lays a large garden and a pool. Block 1 is divided in 8 suites, a studio and a restroom; on Block 2, the social area consists of a home cinema room and a heated swimming pool. Block 3 is composed by a kitchen, a spa and a playing area. Block 4 is reserved for home employees including an independent residence. Outside there is a swimming pool, a tennis court and a playground. The exterior walls are handmade with a local stone (Canga de Minérios) of intense red color that multiplies under sunlight.















More Similar Articles Like This
Wonderful Yachting Club Villas at Elounda Beach by Davide Macullo Architects
Astonishing El Tovar by the Sea
Secluded Naladhu Island in Maldives
Spectacular Luxury House in Sarasota, Florida by DSDG Inc. Architects
The JKC1 House in Bukit Timah, Singapore
Dreamy Oceanfront Chateau In West Vancouver, Canada
Different Types Of Foundations For Summer Houses and Garden Buildings
Tips for Choosing the Right Blue Paint Color for Your Dining Room