Built in Singapore in 2013 and designed by WOW Architects | Warner Wong Design, the Chiltern House is a superb 5,306-square foot residence that was created as a single concrete structure with raw timber formwork and woven steel reinforcements. Utterly reliable, it offers irreproachable private living conditions for all of the residing family members as well as various common areas where they can gather up and enjoy meals or other social activities.
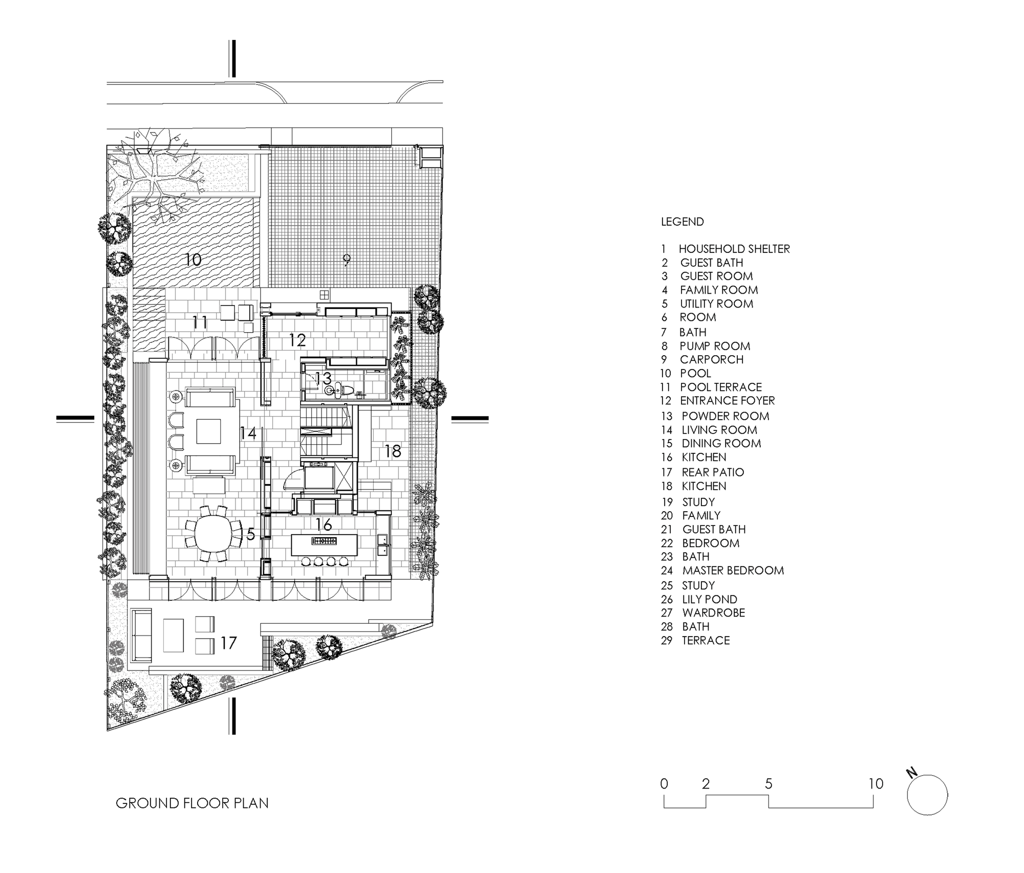
Most of the rooms benefit from amazing views of the city or of the tranquil gardens that beautify the grounds. However, some of the most breathtaking views of Singapore’s skyline can be admired from the master bedroom, which was placed at the top floor along the entire front facade. The different floors are accessed via an interior staircase, which flaunts seemingly floating wooden steps and glass railings. The living room is at the ground floor and is connected to an outdoor patio and a swimming pool through glass doors that fade the limits between the indoor and outdoor spaces.
From the architect:
The spaces in this family home on Chiltern Drive in central Singapore were crafted like a garment, woven around the needs and desires of its inhabitants. The home aspired to be deeply rooted, connected to the surrounding environment, the history of its development, as well as the family’s lifestyle.
The house was constructed as a single monolithic concrete structure. The woven steel reinforcement and raw timber formwork into which the concrete was cast have imprinted the process of building into its surfaces, with rugged lines in the concrete and hints of steel reinforcement in the walls and ledges. As the early morning sun casts shadows across the textured horizontal bands left behind in the concrete where the timber formwork once was, the memory of the construction process itself marks the passing of time and reminds the family of the effort, desire, and realization of their dream.
The spaces within and around the house were designed for each family member to enjoy their own privacy and commune with nature, as well as spaces where they could meaningfully come together in the creation and continuation of family rituals around meals, greetings, and homecomings. The house is articulated around a square geometry in plan, but the spatial arrangement within this straightforward framework is a complex interplay of large and deep spaces and connections that stretch across the length of the house in various directions.
These elongated rooms draw the eye across them, at times relating to the views of the garden, across extended windows that skirt the skyline and horizon or to focus the exaggerated perspectives on select elements within a room. These visual connections within the rooms as well as from space to space help to unite the inhabitants and make them aware of each other’s movements within the house as well as strongly link the house to its surrounding environment.
The living and dining rooms are connected in one continuous space with a swimming pool at one end and a rear garden at the other. Along the length of the room, a low bay window ledge cast into the folds of the wall and a long horizontal window opening provide an intimate and direct connection to the landscape, as well as casual seating that can comfortably accommodate one or many people. Similarly, the expansive kitchen island that extends across the tall and grand kitchen runs parallel to a broad view of the rear garden and makes the kitchen a bright and pleasant room that is just as much a social space as a working area.
With this architectural language of deep spaces and extensive windows, dramatic linear vistas of the gardens that surround the house are framed. The views to the greenery provide a sense of serenity and reflection to the inhabitants and ground them to their environment. The culmination of these views occurs in the master bedroom that runs across the entire front façade of the top storey with a singular horizontal opening across its frontage. This broad window takes in a spectacular and uninterrupted view of the suburban skyline beyond.
Although the house was designed as an integrated experience of the architecture, interior and landscape design, each discipline has its unique expression and concept; the architecture with its rugged concrete aesthetic and expressed construction process, the landscape with four levels of distinct solutions for different spatial objectives using a variety of tropical landscape strategies, and the interiors with a tapestry of personal artifacts that subtly convey the history of the family.
Area: 493.0 sqm
Year: 2013
Photographs: Aaron Pocock













More Similar Articles Like This
A Superb Italianate Mansion in California, USA
Secluded Naladhu Island in Maldives
The Superb Villa Verai on Phuket Island, Thailand
Superb Luxury Penthouse in Portomaso, Malta
Stunning Banyan Tree Ungasan Bali in Indonesia
Unique Click Clack Hotel In Bogota, Colombia
Wonderful Yachting Club Villas at Elounda Beach by Davide Macullo Architects
How Seattle Lawn Care Service Deals With Overgrown Lawns