Located within a historic neighborhood in Mexico City named Colonia Roma, ReUrbano is an older 23,680-square foot building that is being renovated and converted by a team of architects from Cadaval & Solà-Morales. The conversion process will result in a residential complex that will include 9 apartments as well as a commercial space in the upfront facade.
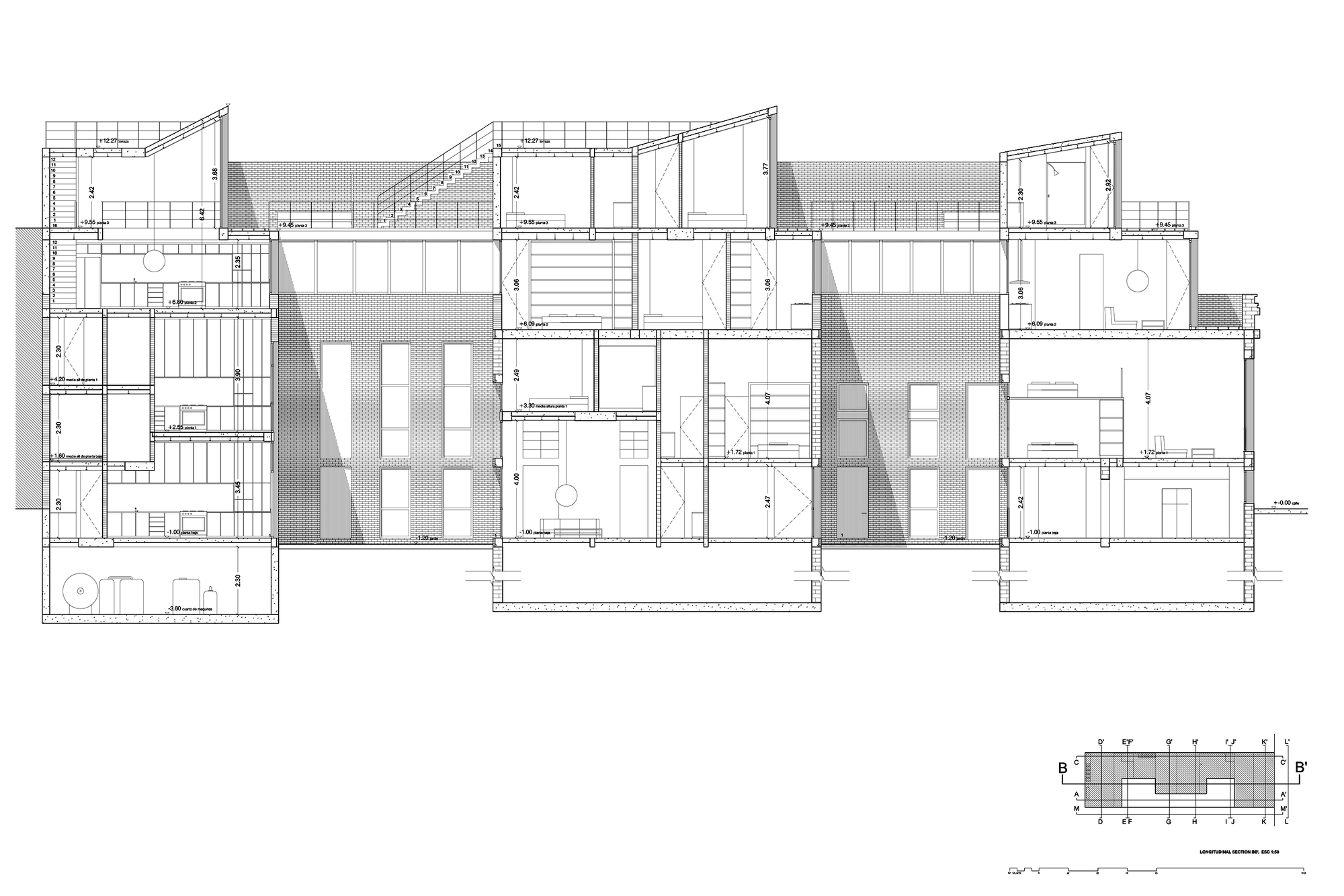
The old house received two new floors, which allow it to rise up to three stories at certain points. The first floor’s facade is glazed completely in order to create the illusion of lightness while visually separating it from the old structure. The top level features a succession of terraces and volumes that resemble a chain of small towers.
The initial house was built using brick, and the same material was used to create an addition at the rear of the building. The new volumes are painted black in order to appear lighter than they would otherwise, and they comprise spacious living areas that offer comfortable living conditions.
From the architect:
The building is located in the Colonia Roma, a historic neighbourhood in the central sector of Mexico City. La Roma developed in the 19th century as one of the first extensions of the city centre, with an orthogonal grid of large houses inhabited by the upper classes of the city. With the emergence of suburban life in the 50s, la Roma decreased its population throughout the second half of the 20th century, getting to its worst with earthquake of 1985.
Due to the location of la Roma in what once was Lake Texcoco, the subsoil is highly muddy, so seismic waves are amplified; thus, during the strong earthquake of 85, la Roma was one of the more affected areas of the city: many buildings collapsed, and many of those which resisted were abandoned by its inhabitants because of their structural damage or because of the fear that the buildings would not resist another earthquake.
The neighbourhood became deeply deteriorated, with high levels of insecurity and abandoned buildings, until its recent re-emergence as one of the most active areas of the city, filled with art galleries, small restaurants, cafés and young people occupying again its streets and public areas.
The project builds on the initiative of the Urban Recyclingstart-up; the initiative is challenging: build housing on a listed building of historical value, without any parking area –in a city where the car is the king-, and incorporating commercial area in the main floor, in a culture where such condition is typically associated to the reality of the lower social classes, and not understood as an indispensable element for building urban quality.
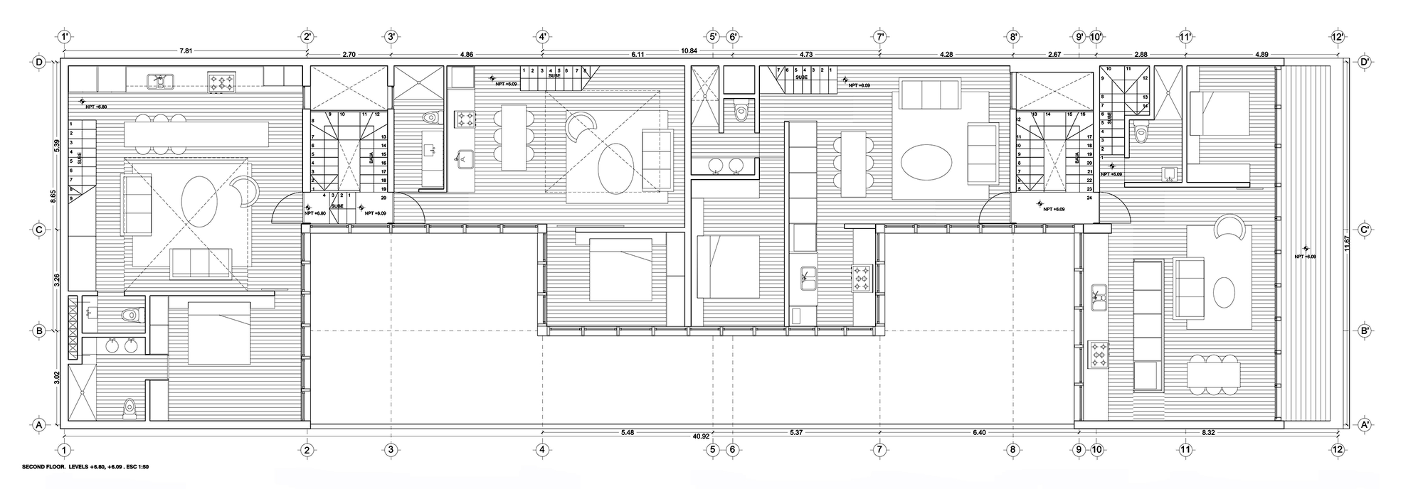
ReUrbano identifies an old house of historical value that was abandoned after the death of its eighty year old occupant and engages us to transform it into a housing building. The project will have 9 apartments of various sizes and configurations, as well as commercial area in the upfront façade. The project forces us to confront the value of architectural form within the urban grid, as well as that of heritage and ways to intervene it. We seek for a discrete project, and we are overseeing to respect the spatial structure (and the essence) of the existing house.
The project maintains almost the overall existing building, beyond the dictum set by the local preservation instances, which establish that only the façade needs to be preserved. We believe in the value of the structure that builds up the façade, as well as in the interest of its current spatiality, and are confident on its possibilities despite the occupancy increase.
The existing building occupies the majority of the plot, although there is a ruin of a service area, independent of the actual house, at the rear of the plot. The project is based on a detailed analysis of each of the existing elements, looking forward to generate a different reality – more consistent with the new economic and social reality-, but in harmony with the original building: past and present coexisting, respecting and creating a new reality built up of two architectural typologies which respond to two different historic moments.
The project is structured through an outdoor sidelong corridor; the existing courtyard that provides entrance to the original house is replicated at the rear back, and therefore the two main cores to access the units are now related to each of those patios. The addition to be built on the back of the house – replacing the old service area-, draws this second patio and has the form and materiality of the existing house, although it uses current technologies: the addition is clearly identifiable by a professional, but provides a continuous reading to a distracted eye.
The project also grows in height, both within the existing building and by the addition of two new floors to the old house. Digging 1.5m below street level, and building a series of intermediate levels inside the house, the interior of the existing house transforms from its original single level to up to 3 levels at some points. To highlight horizontality, the façade of the first floor to be built on top of the existing building is fully glazed, in order to lighten up the weight of the new addition, as well as to differentiate the original building of the new intervention.
The very top floor of the addition, is constructed with air and architecture: a succession of terraces and built volumes modifies the perception of the overall building’ height and slims the project, to appear as a chain of small towers and not as a continuous solid.
The volumes on the upper level have their own identity, both by the material itself, and by the colour (black, not white, to help lighten the weight of the addition). The materials enhance the generation of unique spaces, with great personality, designed for standard families, with changing needs that are also standard: rooms, bedrooms, kitchens and bathrooms build up unique spaces, intricate with the old and the new structure, ready to be appropriated by individual and different lifestyles, which come up with the new inhabitants.
Architects In Charge: Eduardo Cadaval, Clara Solà-Morales.
Area: 2200.0 sqm
Photographs: Miguel de Guzmán
Collaborators: Olivier Arditi, Catherine Nguyen.
Structural Engineering: Ricardo Camacho.
Construction Company: Eugenio Eraña, Juan Carlos Cajiga.














More Similar Articles Like This
Superb Luxury Penthouse in Portomaso, Malta
Boracay Resort & Spa in the Fascinating Philippines
10 Different Types of Blue Paint Colors
Amazing Four Seasons Resort Bora Bora
Astonishing El Tovar by the Sea
Stunning Sustainable Home in Costa Rica by SPG Architects
Marvelous Anantara Dhigu Resort
Exceptional Coronado Bay Front Estate in California