Located in Tatuí, São Paulo, Brazil, this contemporary residence was designed by Felipe Hsu & Lucas Bittar, and they both collaborated extensively with Pedro Fernandes de Bona. The landscaping design was taken care of by Claudia Bresciani e Camila M. B. Guimarães, the structures by Eng. Leonardo C. Spada, while the construction itself was carried out by Empreiteiro Aparecido Trevisano. The home was built in 2012 and features 3,089 square feet of living space.
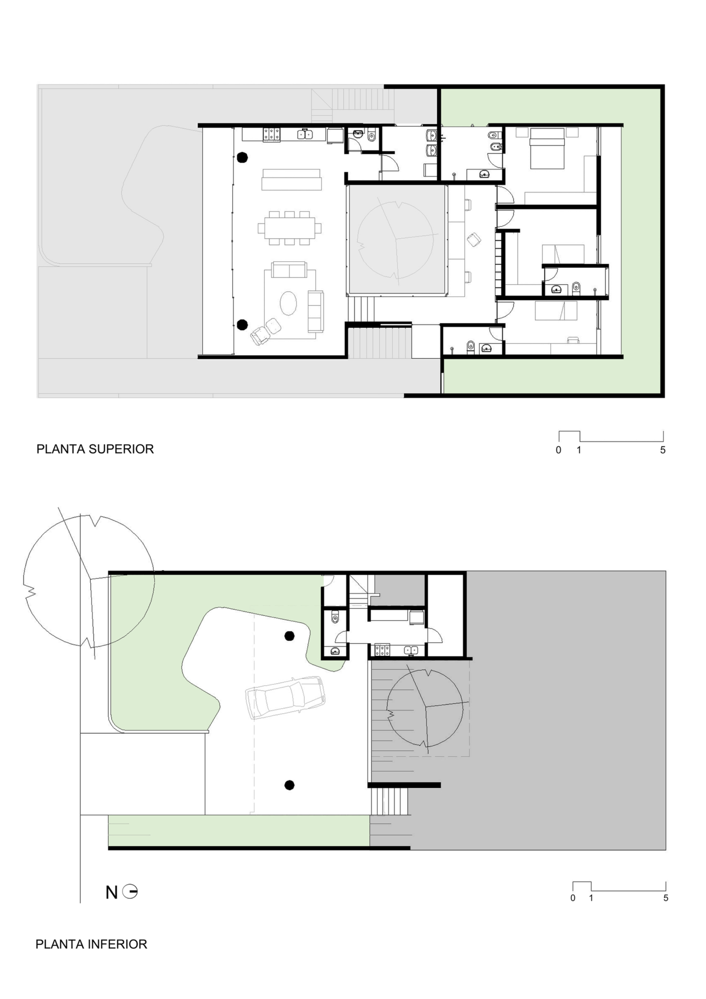
The residence features a single volume with a large living room at its core. This living room flaunts large sliding doors that are connected to a balcony, which ensures breathtaking views. The bedrooms were placed at the opposite end of the abode and benefit from utmost privacy. The interior design of the office gives off an allure of minimalism and elegance thanks to an ingenious combination of crisp white furniture pieces and white walls complemented by the warm shades of brown from the floors.
The living room, kitchen and dining room take on a more contemporary allure with the help of large, welcoming windows, reflective floors and other glass elements that ensure great transparency.
Photos by Pedro Kok











More Similar Articles Like This
10 Different Types of Blue Paint Colors
Exquisite Crossacres Mansion In Surrey, England
Exceptional Coronado Bay Front Estate in California
Gorgeous And Spacious Home In Sunset Strip
Saguaro Palm Springs by Joie de Vivre
These Top Tips Will Help You to Turn Your Garden into the Ultimate Glamping Site!
Beach House CN – A Superb Contemporary Home in Peru
Benjamin Moore Exterior Paint: Vibrant Shades for a Striking Home