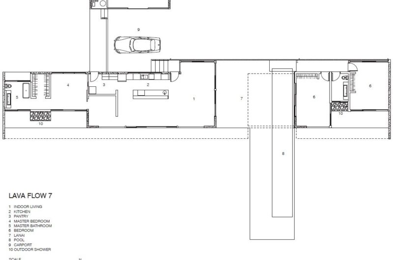
Lavaflow 7 is a beautiful residence located on five acres of Ohia forest, on the Big Island of Hawaii. It was designed by Craig Steely Architecture who brought their contribution in turning this project into a wonderful place to live, but they were also helped by the landscape with the forest and the coastline that did half the job.
The principal architectural element of the house is a 140 foot long, 48 inch tall X 12 inch wide concrete beam supported by three short concrete walls. This feature permitted the installation of uninterrupted glass and covered outdoor area, disconnecting the possible boundaries between man-made and nature.
Photos by Bruce Damonte















More Similar Articles Like This
Opulent Mandarin Oriental Hotel in Paris
Seamlessly Apartment by the Beach by ZZ Architects
The Superb Maradiva Villas Resort & Spa in Mauritius
Heavenly Lily Beach Resort & Spa In Huvahendhoo, Maldives
Shadowed Depths: Vintage-inspired Paint Colors for Dark Basements
Behr’s Brilliant Blues: 70 Shades of Stunning Paint Colors
Beautiful Apartment in Stockholm for $1 Million
Boracay Resort & Spa in the Fascinating Philippines