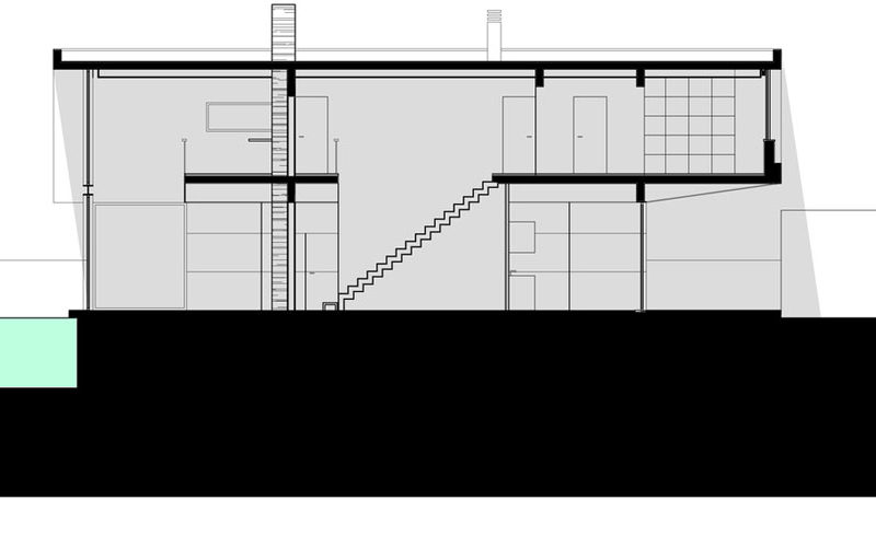
The beautiful DT House by Jorge Graca Costa is an excellent example of innovative architecture, total comfort and energy-efficient building principles. Situated on a hill in Oeiras, Portugal, the house boasts stunning views of the surroundings and equally impressive interiors.
To reduce energy consumption, the house features passive cooling and heating systems, and plenty of natural lighting opportunities. It flaunts huge windows which play an essential role in connecting the lower level with the garden. The lower level is where the public and social spaces are located, while the more private areas can be found on the upper floor.
For better passive cooling, the outdoor pool is placed near the façade, making the best possible use of the natural sea breezes. Also, the water in the pool is not chemically treated, so it can be reused in the garden for landscaping purposes. According to its architect, the residence impresses with “its simplicity, sense of adequacy and economy, respecting the greater values of environmental sustainability that served as inspiration”.
Photos by: Fernando Guerra and Sergio Guerra




















More Similar Articles Like This
Amazing Four Seasons Resort Bora Bora
Vibrant Concrete Floor Paint Colors to Elevate Your Space
Dreamy Oceanfront Chateau In West Vancouver, Canada
Benjamin Moore Exterior Paint: Vibrant Shades for a Striking Home
These Top Tips Will Help You to Turn Your Garden into the Ultimate Glamping Site!
Exceptional Coronado Bay Front Estate in California
The Superb Villa Verai on Phuket Island, Thailand
Loving Luxury at Mardan Palace Resort, Turkey