Boasting a unique design that includes two separate volumes placed on top of each other, the LP House was sketched out by Metro Arquitetos Associados and is located in Sao Paulo, Brazil. It features 2,045 square feet of living space and its ground floor was constructed using reinforced concrete and a solid concrete slab. Its enclosures are made out if concrete complemented by wooden panels and glass elements, while the upper floor flaunts a lighter build based on a metal structure and steel panels.
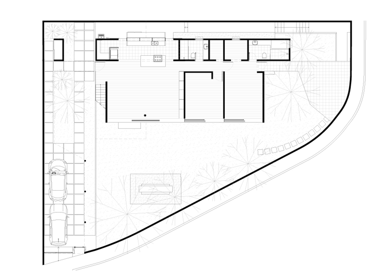
Downstairs we find the main living areas such as the bedrooms and the living room, all of which open up towards a beautiful garden. The two bathrooms, kitchen and laundry room are also located at the ground level as a part of an elongated volume. Upstairs is where we find an office, which can be reached via a staircase built just outside of the house.
From the architect:
The architectural project for this house consists of two main volumes; ground floor and superior floor.
The ground floor embraces the architectonical program of the house and is organized by a longilineal volume that incorporates all of the wet areas; two bathrooms, kitchen and laundry room. This main volume stretches along the whole extension of the house, parallel to the lateral border and demarcating the end and initial point of the terrain.
The main areas of the house, living room and bedrooms, open up towards the garden in a transverse direction to the wet areas. The elevated flooring, 45cm above the ground level, allows the front of the house to be used as a comfortable seating area facing the garden.
The whole structure of the house is made of reinforced concrete with a solid concrete slab and inverted beam. All enclosures are of concrete, glass and wooden panels. The superior floor, where the office is located, consists of a lighter construction, made out of steel panelling and metal structure.
The cantilever on both extremities and the narrow slit between the floor beam and the roof slab accentuate the idea of two independent volumes. The stairway is the element that unites both of these volumes, even if positioned on the outside of the house. This makes it possible to go up and down without the need for going inside the house.
A house made up of volumes that organize space and define its structure creates the desired design and a beautiful sinuous garden.
Location: Butanta, São Paulo – State of São Paulo, Brazil
Architectural Design: Gustavo Cedroni, Martin Corullon e Anna Ferrari
Area: 190.0 sqm
Year: 2014
Photographs: Leonardo Finotti
Collaborators: Marina Ioshii, Luis Tavares, Bruno Kim, Alfonso Simelio
Site Area: 520m2















More Similar Articles Like This
Lovelli Residence: Mediterranean-Style Dwelling in Bali
How Seattle Lawn Care Service Deals With Overgrown Lawns
The Superb Maradiva Villas Resort & Spa in Mauritius
Beautiful Apartment in Stockholm for $1 Million
Unique Click Clack Hotel In Bogota, Colombia
Santa Barbara Style Home in Paradise Valley, Phoenix
Tips for Choosing the Right Blue Paint Color for Your Dining Room
The Sophisticated Casa Villa Flamingo in Spain