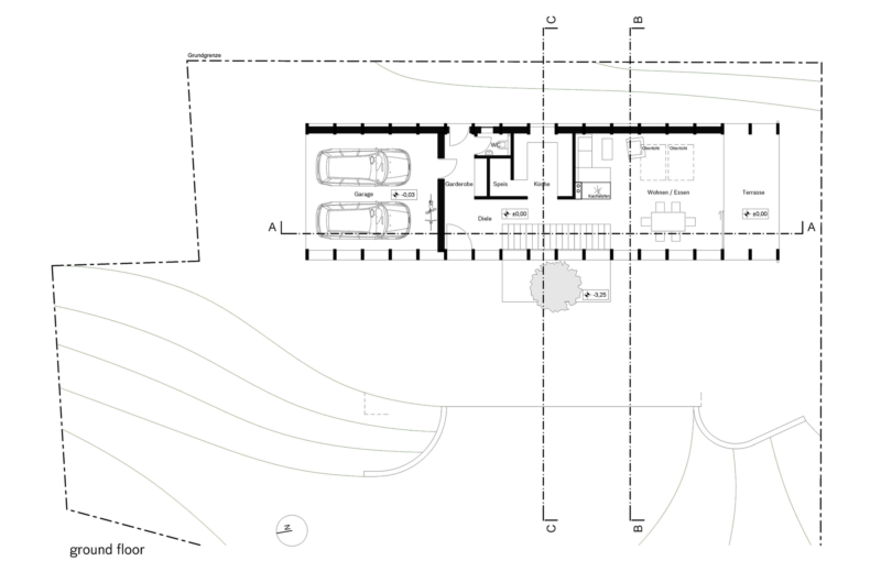
House G was built in 2012 in Bergweg, Austria, and it offers 1,614 square feet of space. It was designed by a firm named HPSA and was divided into two parts, one of which includes an open space living area, while the other comprises a more private area at the basement level.
The living area is found on the ground floor and was sketched out as a timber structure that flaunts wooden lamellar shaped columns that ensure privacy from neighbors. The two levels of the abode are linked by a suspended staircase that features wooden steps. As far as the bedrooms are concerned, it’s worth mentioning that all of them flaunt access to a covered terrace and a garden.
In order to ensure that the bedrooms would not overheat during the warm season, the roof of House G was decorated with green plants.













More Similar Articles Like This
Lawn Care Tips, The Basics For Each Season
Gorgeous And Spacious Home In Sunset Strip
Best paint colors for the living room
Extraordinary Constance Halaveli Maldives Resort
Pure Perfection: Discover the Top White Paint Colors for a Flawless Décor
The JKC1 House in Bukit Timah, Singapore
Marvelous Anantara Dhigu Resort
Stunning Banyan Tree Ungasan Bali in Indonesia