Built on a sloped site in Santana do Parnaíba, Sao Paulo, Brazil, the Jatobás Residence was designed by Gesto Arquitetura and was completed in 2011. It boasts 6,587 square feet of living space and is composed of four independent volumes that are linked by small bridges and walkways. Built for a couple of movie directors, the project includes a movie theater and an office space that was implemented on the opposite side of the main house.
The abode benefits from great views of the outdoors and includes plenty of glass elements that blur the limits between the interior and exterior areas. Balconies and wooden decks allow the residents to enjoy moments of relaxation and contemplation, while well-furnished and aptly equipped living areas sustain a comfortable lifestyle.
The Jatobas Residence incorporates residential spaces as well as workspaces due to its unique design. It is a versatile and modern home that combines functionality and luxury.
From the architect:
Jatoba residence is located in Santana do Parnaíba, a town near the city of São Paulo where the natural landscape is more preserved and one can co-habitate with fragments of natural vegetation, hills, and mountains in the distance.
The residence is located in this environment and sloped site.
The design of this siting had as its primary intention to maintain the perception of the landscape even in the presence of this built object, either by direct users, and also by those who pass the street and the small square in front of the site.
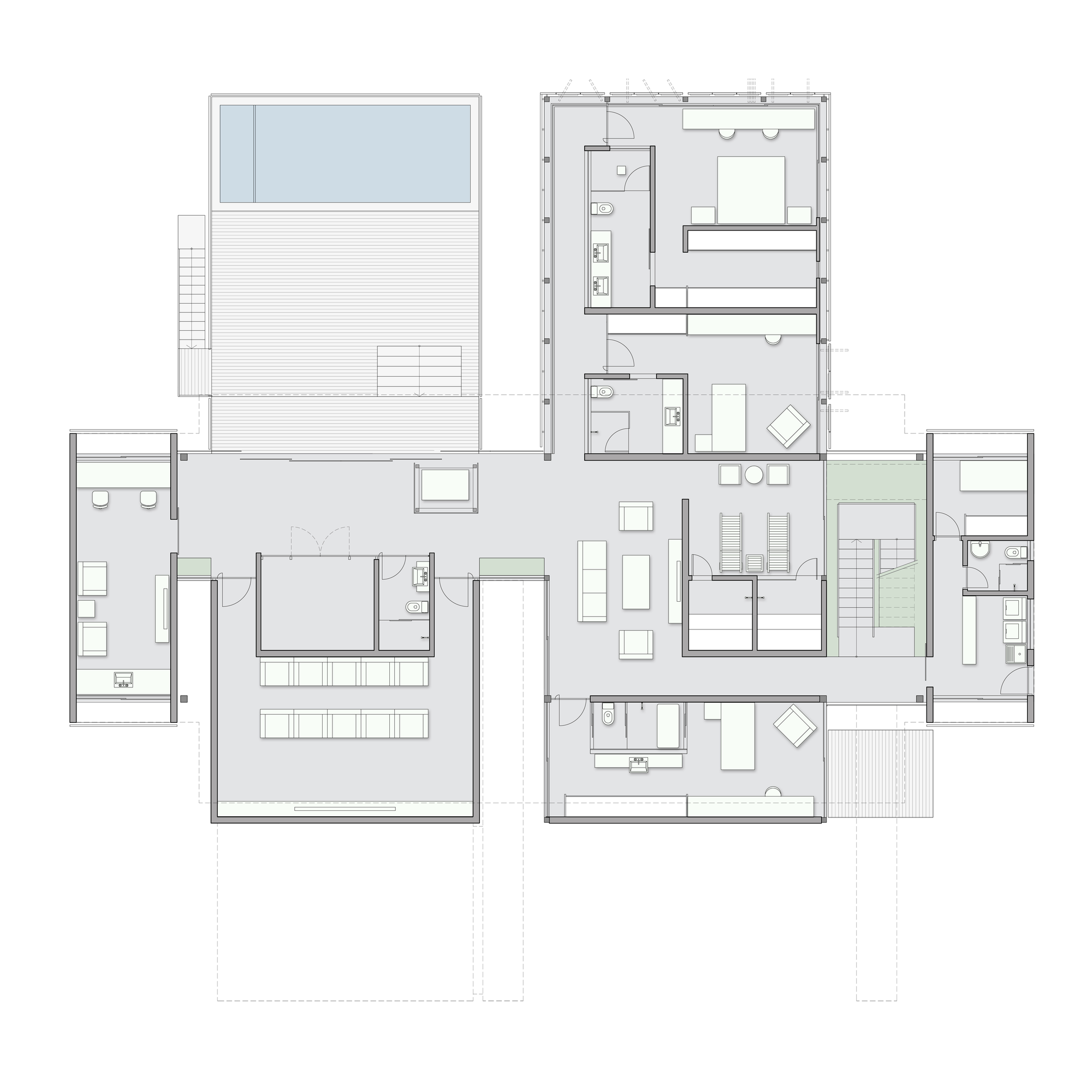
Thus, the environments were organized in four well defined and independent volumes where the connections are characterized by walkways or small connecting bridges. These conditions meant that the proposed horizontal and vertical distances between the volumes yielded spaces, cracks, and an internal and external visual flow through the building.
According to the owners, it is now possible to note the presence of people moving through the street in front of the house, observing the landscape through the residence, as well as observing the residence in the landscape, where the two or other possibilities appear from this intervention in the site.
Added to these intentions with respect to the landscape, is the program organization of the interior space and its layout.
The space was provided to house the program of the dwelling and the workspace of a couple of movie directors, for which we have provided additionally an office for daily work and a movie theater, where the layout is arranged so that the dwelling and the office stay on opposite sides, so that the users can have even a short distance going back and forth from work.
Walking through the building, one goes through the more collective areas in relation to the street, and the open spaces similar to the plazas of the city.
As residential and work space, the spaces may appear as semi-public where external work-related users and family visitors will enjoy the house more generously by perceiving less privacy for its use.
In this way we tried to contemplate the relationship with the landscape in its pre existing condition through the transparencies to the street and its surroundings, and we proposed ways of use of the internal space where the house and the work are permeated by the collective intermediate and semi-public spaces, considering external users.
Project Architects: Newton Massafumi Yamato e Tânia Regina Parma
Project Area: 612.7 m2
Project Year: 2011
Photographs: Nelson Kon
Structures: YCON Engenharia Ltda. | Yopanan Rabello – engenheiro
Electrical And Plumbing: PROJESP Engenharia Ltda.
: Solo Engenharia Ltda.
Foundations: Meirelles Carvalho Engenharia e Projetos Ltda.
Construction: Steel Construções e Empreendimentos Ltda.












More Similar Articles Like This
Opulent Mandarin Oriental Hotel in Paris
The Superb Villa Verai on Phuket Island, Thailand
Extraordinary Constance Halaveli Maldives Resort
Best paint colors for the living room
The JKC1 House in Bukit Timah, Singapore
Exploring the New World of Luxury Hoteling
6 Garden and Lawn Tips to Get Ready for Spring
Spectacular Rooftop Apartment by Innocad