Located on a 7-acre, wooded lot named Difficult Run in McLean, Virginia, this residence was designed by Robert M. Gurney Architect and represents the result of a successful renovation and expansion project. Aside from the expansion of the existing abode, the project also includes the addition of a garage and a guesthouse, both of which are organized around a mature Deodar Cedar tree.
The existing house was built in 1965 and featured a low-pitched roof that sheltered its interior and exterior spaces, as well as a series of compartmentalized and poorly lit interior spaces. The architects removed all interior finishes and some of the walls, and they added larger windows in order to create a more generous flow of natural light. Interior finishes comprise dark stained oak flooring, Cambrian Cream stone elements, smoked oak, lacquered millwork, polished black granite and plenty of glass.
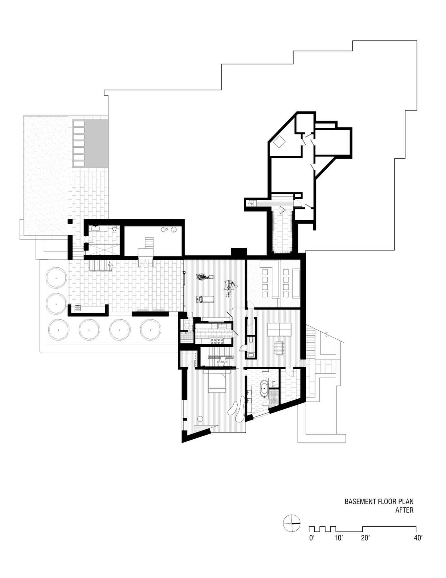
Private living arrangements comprise five bedrooms and five bathrooms, while the social areas include an exercise room, a library, a laundry room and a media room. The guesthouse has two bedrooms of its own, while the garage is large enough to accommodate three cars.
From the architect:
Located in Mclean, Virginia, this project is sited on a seven acre, steeply sloping, wooded lot bordering a stream and parkland trail, known as Difficult Run. The scope of work involved a complete renovation of an existing house, a substantial addition to the house, a new detached garage and guest house, and a comprehensive reorganization of the site.
The pre-existing approach to the house involved a narrow, meandering driveway with limited parking space. Adjacent vegetation was overgrown, and in many places, severely reduced the amount of light entering the house. As part of the renovation, extensive on-site parking was required to accommodate large family and corporate gatherings. A limestone wall with a custom designed steel gate creates a threshold to the property. The new parking area and tree-lined approach to the house is delineated with a series of limestone and stacked slate walls arranged on axis to the house and rendered with differing paving materials. A new garage and guesthouse structure is located to further define the parking area and is organized around a large, mature Deodar Cedar tree. A stone wall with a water element is introduced opposite the main entry and extends this principal axis. Stone paths and stairways, corten steel walls, gabion stone walls, a swimming pool with an infinity edge, a reflecting pool, terraces and decks, and structured plantings continue to organize the site and provide an abundance of outdoor living spaces.
The existing main structure, built in 1965, contained a series of interior and exterior spaces below a single, low-pitched roof with a ridgeline spanning diagonally above the orthogonally arranged spaces. An attached hexagonal volume contained the bedrooms. The space was wrapped in a muted palette of materials including dark flagstone flooring, gray stone walls and fireplaces, and dark wood walls and ceilings. This rendered existing interior spaces compartmentalized and dark, despite expanses of glass. In renovating the main house, all interior finishes were stripped, walls were removed, spaces were opened up and windows were enlarged and replaced, in an effort to reflect the light rather than absorb it. A series of small additions were implemented as required and located within the footprint of the existing roof. While the roof structure was retained, the ballast roofing was replaced with standing seam, terne coated stainless steel. In addition, the board and batten siding was supplanted with a combination of dry-stacked slate, stucco and limestone. The new window system is comprised of a custom steel curtain wall and steel windows with thin profiles. Interior finishes include Cambrian Cream stone and dark stained oak flooring, smoked oak, Wenge, Walnut and lacquered millwork, glass, and honed, polished, and hammered absolute black granite. Detailing is crisp and minimal with no trim, casing or baseboards.
The new addition encompasses a large library, five bedrooms and bathrooms, an exercise room, media room, laundry room, and other support spaces. These new spaces are stacked vertically but descend, rather than ascend, minimizing the apparent size of the new structure as perceived upon entering the property, and to work within the steeply sloping topography. The rooftop of the addition extends the slightly sloping roofline of the existing house and folds up at the southern corner to capture light and to provide expansive views into the wooded landscape and stream below. Finishes and detailing continue the palette prescribed in the main house.
The new garage accommodates three cars and the guesthouse includes two bedrooms. The massing and materials employed continue the language introduced at the main house.
This is a large and comprehensive project that entails a total integration of site specific requirements, landscape components, a complete renovation of a substantial structure, a significant addition and a separate garage and guesthouse. The goal of this project was to incorporate all of these requirements in a cohesive, site responsive manner that provides integrated interior and exterior spaces sensitive to the land the project occupies.
Architects: Robert M. Gurney Architect
Location: McLean, VA, USA
Project Architect: John Riordan, LEED AP
Photographs: Maxwell MacKenzie Architectural Photographer
Phase 1 Contractor: Peterson & Collins
Phase 2 Contractor: Commonwealth Building & Design
Landscape Designer: Lila Fendrick Landscape Architecture and Garden Design
Engineer: D. Anthony Beale LLC















More Similar Articles Like This
5 Ways to Turn Your Yard Into a Fancy Space
Marvelous Anantara Dhigu Resort
Spectacular Rooftop Apartment by Innocad
Heavenly Lily Beach Resort & Spa In Huvahendhoo, Maldives
Saguaro Palm Springs by Joie de Vivre
The Superb Villa Verai on Phuket Island, Thailand
Exceptional Coronado Bay Front Estate in California
Santa Barbara Style Home in Paradise Valley, Phoenix