This modern home was completed in 2014 by Aamer Architects and is located in Singapore. Formerly a semi-dethatched house, it is now fully independent thanks to a successful intervention. By freeing the house from its neighbor, the architects created a 9.8-foot wide fissure that is naturally illuminated and supports natural ventilation.
The front of this fissure acts as an entry space, and it leads the way to a double-story foyer. Naturally illuminated, the foyer features a textured brick wall as well as a staircase that connects it to the second level. Similar in shape to a funnel, this space receives natural ventilation and flaunts green pockets at both of its ends. Protection from the elements is achieved with the help of deep overhangs, which block excess sunlight as well as rogue winds.
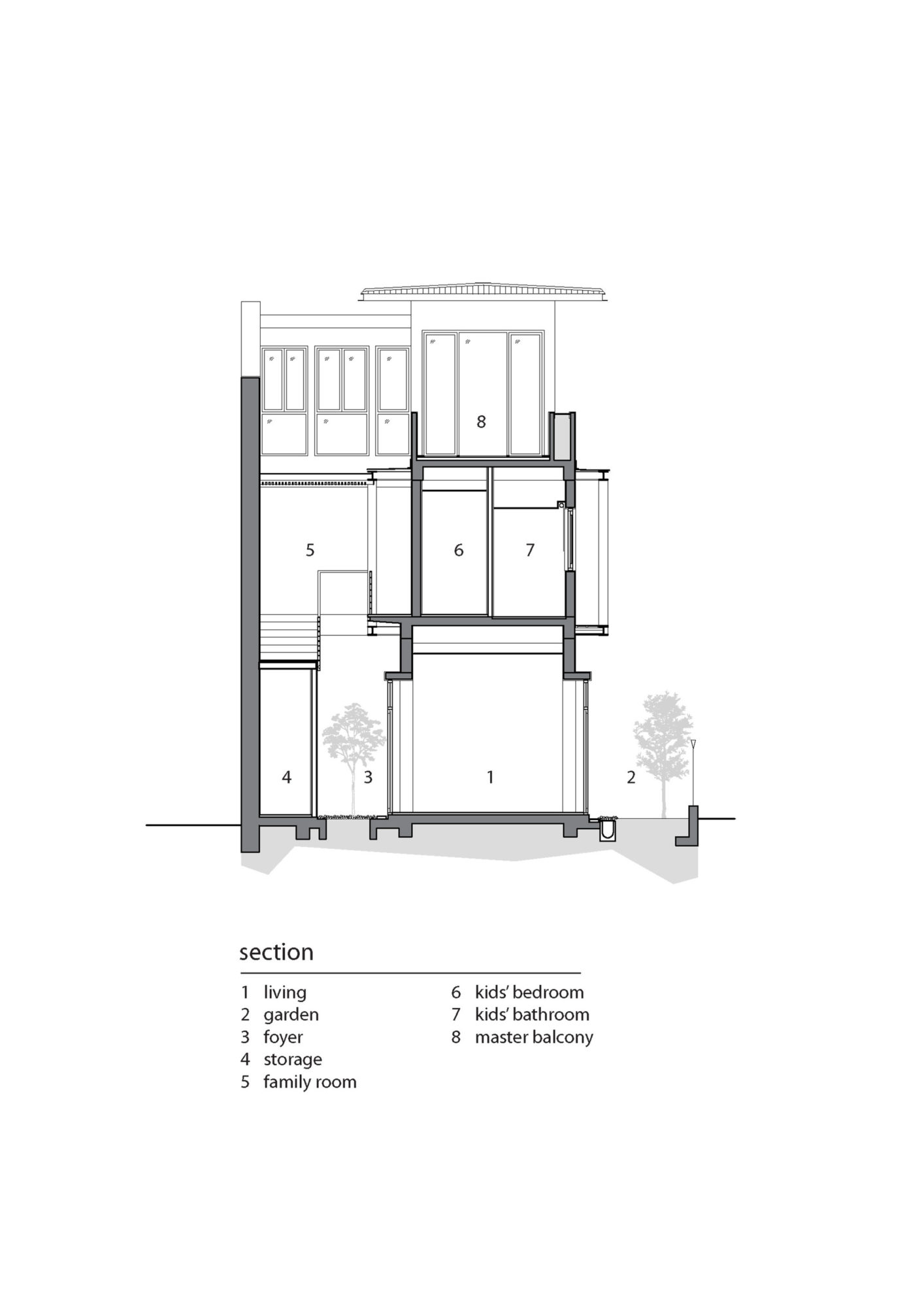
The first level of the house includes the living area, the dining space, a dry kitchen, a powder room, a wet kitchen, a household shelter, a helper room, and accommodations for guests. The second level comprises a family room, a pantry, a children’s bedroom and bathroom as well as a balcony. Last but not least, the third bedroom features a study and the master bedroom with its master bathroom.
From the architect:
As a typology, the semi-detached house is often perceived as a Siamese twin, reluctantly conjoined to its symmetrical other via a single party wall. The desire to challenge such a notion drives the parti of this single-family house. By separating and pulling the main building block away from the party wall, a semi-detached house breaks free.
Not only does this formally and aesthetically liberate the house from its neighbour; it also creates a 3m-wide fissure into which light and air penetrate deep into its interiors.
One enters the house through the front of this fissure, where he is greeted by a double-storey volume foyer naturally lit from above. Light splashes onto the richly-textured brick wall, casting shadows which vary in form and intensity over time. The light leads one up the staircase onto the second storey. By now, the fissure manifests itself as a gathering realm for the family.
In this funnel-like, naturally-ventilated space, wind passes through freely from the front to the back, both ends at which pockets of green have been inserted. Deep overhangs and operable blinds protect the interiors where necessary.
Here in lies the beauty of the house: a space which is at once sheltered yet connected to its environment. Such is the simple delight of tropical living.
- Project Year: 2014
- Photographs: Sanjay Kewlani , Fabian Ong
- Design Team: Aamer Taher, Rayson Kan
- Project Team : Jasni Ngahtemin, Rayson Kan, Albert Yeo













More Similar Articles Like This
Wonderful Yachting Club Villas at Elounda Beach by Davide Macullo Architects
Secluded Naladhu Island in Maldives
Different Types Of Foundations For Summer Houses and Garden Buildings
Exceptional Coronado Bay Front Estate in California
Spectacular Rooftop Apartment by Innocad
Marvelous Anantara Dhigu Resort
Stunning Sustainable Home in Costa Rica by SPG Architects
These Top Tips Will Help You to Turn Your Garden into the Ultimate Glamping Site!