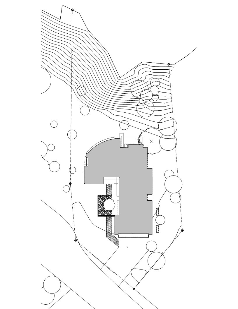
The Sunset Point Residence located in San Juan Island, Washington, was designed by Seattle-based David Vandervort Architects.
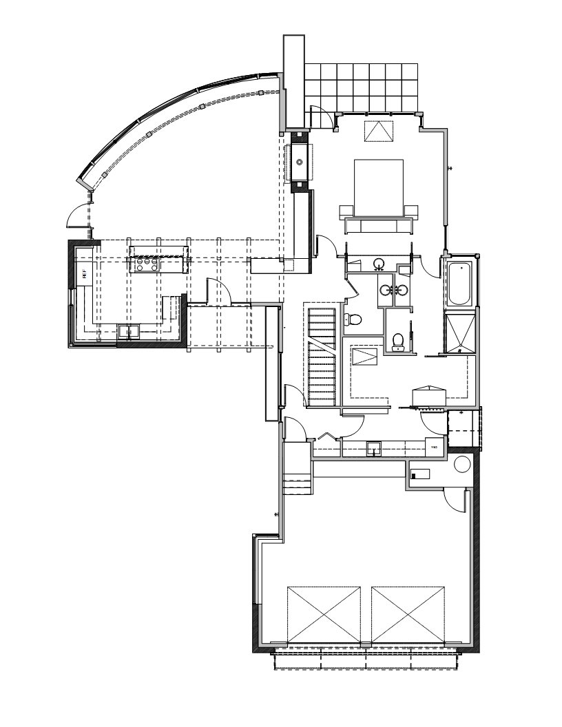
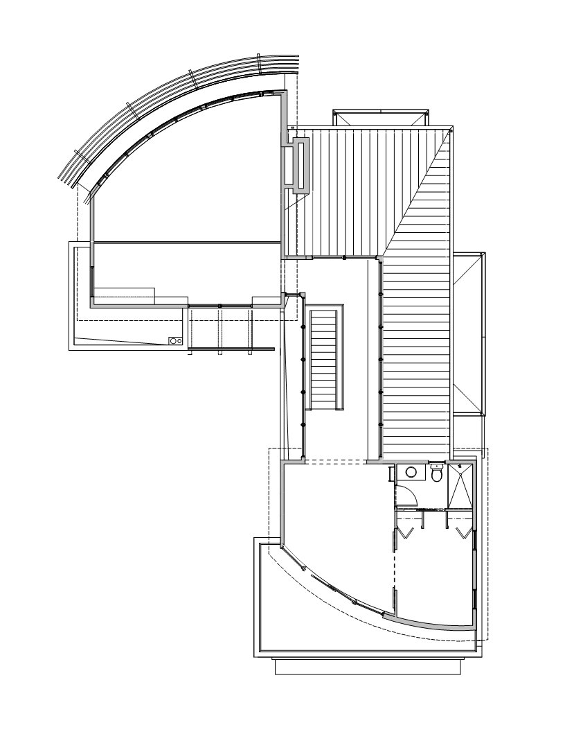
It is a 2,365 sqft home perched on a San Juan Island shoreline, designed with two mirroring curved glass walls that frame the views and let the light flood the indoor space.
Because the couple who wanted the house was seeking for comfort and security, there were used natural materials such as stained cedar siding, hot rolled steel and metal for the roof.
The space is completed by the kitchen and the dining areas which are connected to the outdoor entertaining patio and to the natural landscaping.
Photos by Michael Shopenn
























More Similar Articles Like This
Different Types Of Foundations For Summer Houses and Garden Buildings
Vibrant Concrete Floor Paint Colors to Elevate Your Space
Beautiful Apartment in Stockholm for $1 Million
These Top Tips Will Help You to Turn Your Garden into the Ultimate Glamping Site!
Lawn Care Tips, The Basics For Each SeasonÂ
Benjamin Moore Exterior Paint: Vibrant Shades for a Striking Home
Exceptional Coronado Bay Front Estate in California
Exploring the New World of Luxury Hoteling