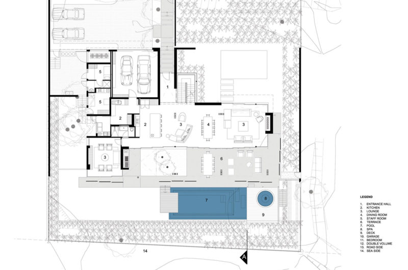
La Lucia is a contemporary luxury house designed by Stefan Antoni Olmesdahl Truen Architects (SAOTA) in collaboration with interior designers at Antoni Associates. You can find this lovely residence on the North Coast of KwaZulu Natal, South Africa, surrounded by milkwood trees, two of which majestically flank the entrance of the house.
The brief of the project called for a family beach house that could ensure ultimate holiday relaxation in a pleasant environment. Being situated among trees that are protected by law, the house had to be carefully built according to very strict regulations and environmental controls.
The four bedrooms of the residence flaunt superb sea views and are located on the upper level. They also feature private terraces for enhanced comfort and for a stronger connection with the environment. The ground level is seamlessly connected to the sea-facing pool deck. The home’s signature is given by the milkwood trees-inspired “bronzed anodised aluminium sliding screens that cocoon the structure entirely or in part”.
Photos by: Karl Beath





















More Similar Articles Like This
Spectacular Luxury House in Sarasota, Florida by DSDG Inc. Architects
These Top Tips Will Help You to Turn Your Garden into the Ultimate Glamping Site!
Amazing Four Seasons Resort Bora Bora
Exquisite Crossacres Mansion In Surrey, England
The Sophisticated Casa Villa Flamingo in Spain
Opulent Mandarin Oriental Hotel in Paris
A Superb Italianate Mansion in California, USA
Different Types Of Foundations For Summer Houses and Garden Buildings