The private home that we’re about to present is named C-House, and it was built in 2014 in one of the neighborhoods located at the edge of Timisoara in Romania. It was designed by Parasite Studio and flaunts a plain black and white exterior design. However, its interiors are nothing if not luxurious, as they include a plethora of amenities and modern facilities complemented by high quality finishes and tasteful decors.
The four different facades of the C-House boast different characteristics depending on their cardinal orientations. The north side comes with fragmented openings and is quite opaque. It does, however, feature a few narrow slits that make sure that natural light is able to enter the main living area, albeit indirectly. On the opposite end, the southern façade has extruded volumes that welcome light without obstruction. The western side offers views of the backyard, where the lounging areas and swimming pool are located.
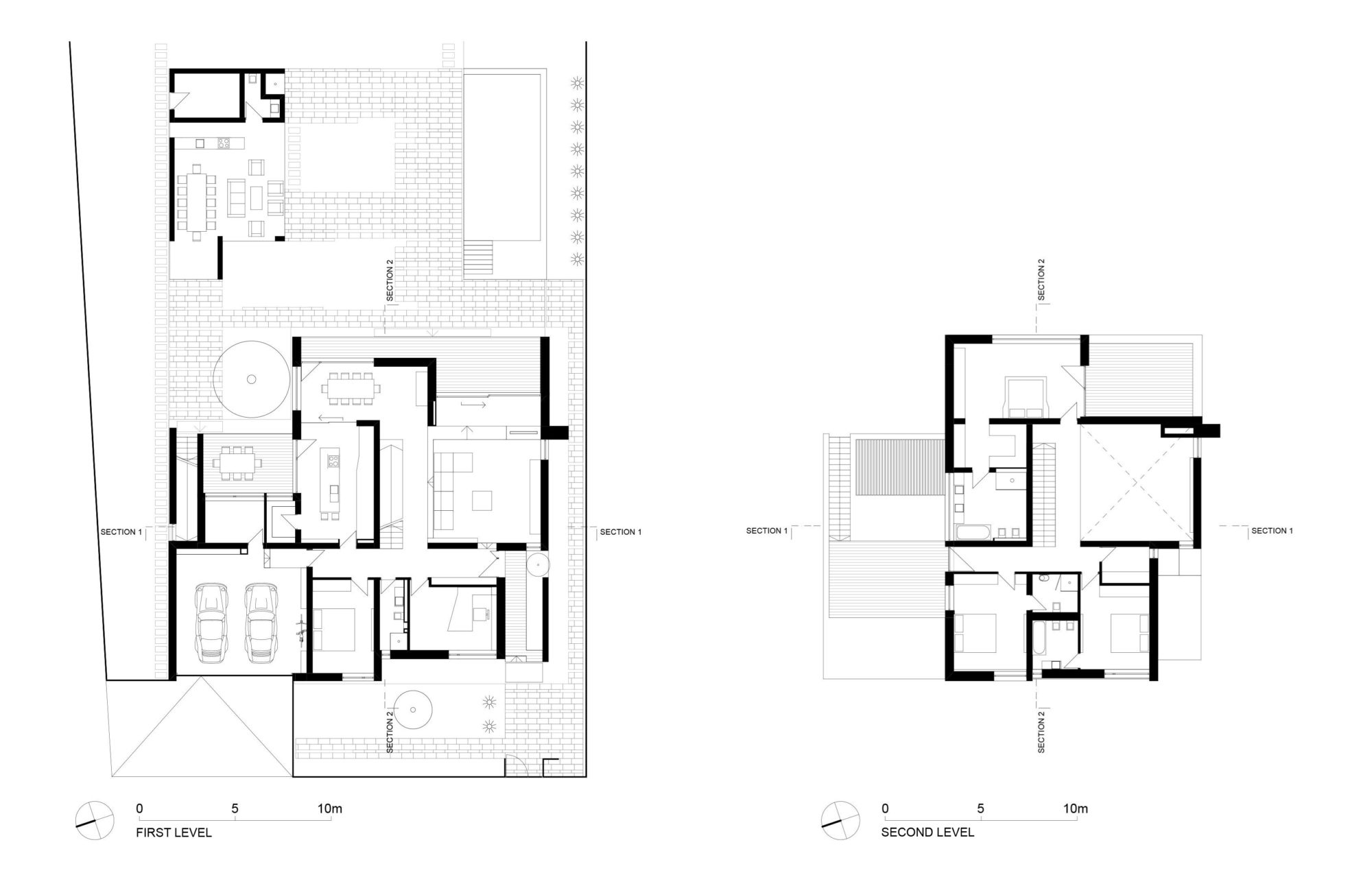
The two levels are connected via a floating white staircase that leads the way to the more private areas such as the kid’s rooms and the master bedroom.
From the architect:
The house is situated in one of Timisoara’s marginal neighborhoods, in a recently constructed zone with a heterogeneous character- regarding the volumes, their alignment and their colors. Thus, we proposed a simple black and white volume.
The chosen volume serves a double purpose: emphasizing the building in the given context and concealing the interior and exterior private space from the street.
The white color highlights the volume’s horizontal/ vertical dynamics, and the black color has the role of visually stretching the openings and emphasizing the openings. The facades have different dynamics in relation with their cardinal orientation. The main facade faces east, and it accentuates the horizontality of the volumes, respecting the street dynamics. The southern facade has extruded volumes in order to offer the interior spaces as much light as they need. The western facade becomes more static, more transparent, opening the views to the backyard, a space for relaxation and swimming. The northern facade is more opaque, the openings are more fragmented, having a series of narrow slits that let the indirect lighting into the main space.
All the walkways, the horizontal ones as well as the vertical ones meet in the living room, a central space that orders and directs the movement. The central space also controls the ambient, being created in order to facilitate the natural airflow. The stair spaces’ height lets this happen eliminating the warm air on the northern side, above the living room.
The first floor is composed of two private zones: the main bedroom and the children’s rooms. These zones are separated by a walkway that visually controls the living area.
The backyard is composed of two different zones, one dominantly mineral, near the house, composed of a leisure space detached from the main volume and the pool, situated in the sunny part of the parcel, and the other zone, in the back, is a designed vegetal landscape.
















More Similar Articles Like This
Spectacular Luxury House in Sarasota, Florida by DSDG Inc. Architects
Benjamin Moore Exterior Paint: Vibrant Shades for a Striking Home
The Superb Maradiva Villas Resort & Spa in Mauritius
Behr’s Brilliant Blues: 70 Shades of Stunning Paint Colors
The Superb Villa Verai on Phuket Island, Thailand
Secluded Naladhu Island in Maldives
Best paint colors for the living room
Dreamy Oceanfront Chateau In West Vancouver, Canada