Completed in 2012 by Richard Meier and Partners, this stunning residential complex is located in Yalikavak, Turkey, and it is composed of 21 houses. Set on 1-acre parcels each, and still under construction, they are known as the Bodrum Houses with stunning views to Yalikavak Bay. First the architects will create five prototype residences, each one with 3,552 square feet of living spaces, plus a 430-square-foot guest house.
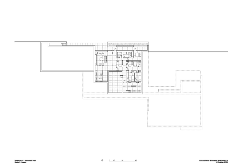
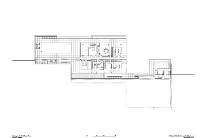
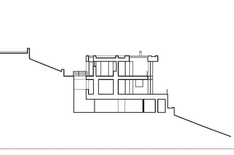
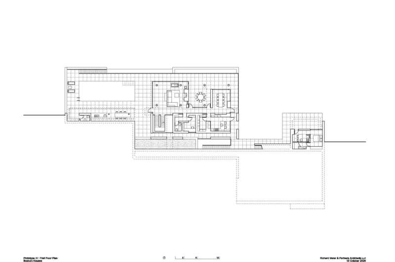
Each prototype will have a clear promenade sequence and a driveway that will lead to an exterior entry stair. They will also feature lovely foyers, double-height living rooms, and a three floors. The ground level will hold the kitchen, living room, dining room, and powder room; the first floor will house three bedrooms; and the basement level will feature the staff bedrooms, media room and laundry room.
Richard Meier said: “We hope this new development is not only in direct dialogue to its place, but also that it becomes the best living environment in Yalikavak.” We believe that the Bodrum Houses are very likely to do exactly that.














More Similar Articles Like This
A Superb Italianate Mansion in California, USA
Heavenly Lily Beach Resort & Spa In Huvahendhoo, Maldives
Beautiful Apartment in Stockholm for $1 Million
Loving Luxury at Mardan Palace Resort, Turkey
Extraordinary Constance Halaveli Maldives Resort
The Superb Villa Verai on Phuket Island, Thailand
Benjamin Moore Exterior Paint: Vibrant Shades for a Striking Home
Shadowed Depths: Vintage-inspired Paint Colors for Dark Basements