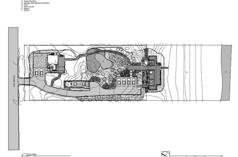
The Surfside House in Bridgehampton, New York was designed by Stelle Architects and was wonderfully integrated in the light-saturated, oceanfront landscape. It features guest quarters, a garage, a two-story house clad in horizontal slats and a swimming pool.
To its natural beauty were also added beach grass, bayberry and other plants from the area. The house also benefits from geothermal heating/cooling system and photovoltaic electric panels.
What else could you wish for when you have the sea just steps away and the house you live in is equipped with everything you need in order to live a comfortable life?















More Similar Articles Like This
Different Types Of Foundations For Summer Houses and Garden Buildings
Pure Perfection: Discover the Top White Paint Colors for a Flawless Décor
Boracay Resort & Spa in the Fascinating Philippines
Vibrant Concrete Floor Paint Colors to Elevate Your Space
Opulent Mandarin Oriental Hotel in Paris
A Superb Italianate Mansion in California, USA
Behr’s Brilliant Blues: 70 Shades of Stunning Paint Colors
Exceptional Coronado Bay Front Estate in California