The modern and luxurious Casa Juncal & Rodney was designed by Pepe Gascon Arquitectura and can be found in a place called Carrer dels Torradors in Girona, Spain. Featuring no less than 3,885 square feet of space, this stunning residence comes with a price tag of about $702,000, but given its unique location and splendid design, it is arguably worth even more than that.
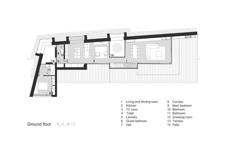
The home was built parallel with the access road, and it is actually sheltered by it. As such, the entrance can be found on the upper level and is directly connected to the aforementioned roadway, while the level below features a series of small courtyards, gardens and the public living arrangements. The 2 levels distinguish themselves with unique designs: one of them boasts opacity and compartmentation while the other features transparency and utmost openness.
Inside, a staircase provides internal connection for these 2 levels, and it also ensures quick and easy access to the most important areas of the abode without much effort.
Photos by José Hevia



















More Similar Articles Like This
Green Gables Home In Fairfield, Connecticut, United States
Vibrant Wood Tones: Explore a Spectrum of Spray Paint Colors!
Amazing Four Seasons Resort Bora Bora
Dreamy Oceanfront Chateau In West Vancouver, Canada
Lovelli Residence: Mediterranean-Style Dwelling in Bali
Superb Luxury Penthouse in Portomaso, Malta
10 Different Types of Blue Paint Colors
Opulent Mandarin Oriental Hotel in Paris