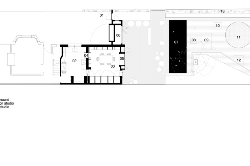
This modern and spacious suburban studio can be found within the London Borough of Enfield in the UK, and it was sketched out and built by experts from a studio called Ashton Porter Architects in 2010. The abode flaunts a direct connection to its surrounding garden, and represents a perfect place for leisure and work at the same time.
Since the residence is used for work and domestic purposes, the architects in charge of the project needed to separate the working environment appropriately. Consequently, the main studio is completely separated from the main living areas in order to benefit from quiet and ensure optimum working conditions. However, during the weekends or in the evenings, the studio can be used for entertainment purposes by adults and children alike.
Built using timber and aluminum elements extensively, the residence boasts passive heating with the help of several Macintosh Computers, but floor heating is also present for a touch of extra comfort.

















More Similar Articles Like This
Benjamin Moore Exterior Paint: Vibrant Shades for a Striking Home
Marvelous Anantara Dhigu Resort
6 Garden and Lawn Tips to Get Ready for Spring
These Top Tips Will Help You to Turn Your Garden into the Ultimate Glamping Site!
Stunning Banyan Tree Ungasan Bali in Indonesia
Santa Barbara Style Home in Paradise Valley, Phoenix
10 Different Types of Blue Paint Colors
Green Gables Home In Fairfield, Connecticut, United States