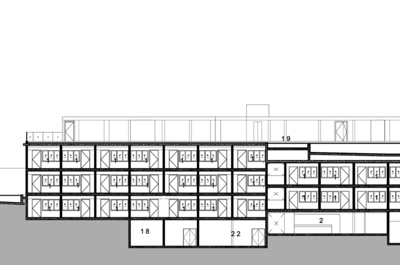
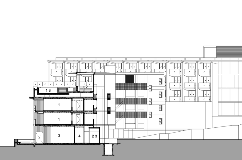
Foundry of Space architects completed the KC Grande Resort & Spa-Hillside in 2013. This beautiful location was constructed because of the growing tourism in the East coast of Thailand. It is located in the Koh Chang Island, Trad, in Thailand, which is one of the most popular places among European holidaymakers.
The building is split into two parts in two different levels to mold the topography. On the first floor of the upper and the lower building, all guests have direct access to the pools and are offered clear views towards the sea.
A 40-m long infinity-edge pool is located on the rooftop of the lower building, overlooking towards Had SaiKhao Beach.





















More Similar Articles Like This
Tips for Choosing the Right Blue Paint Color for Your Dining Room
Wonderful Yachting Club Villas at Elounda Beach by Davide Macullo Architects
A Superb Italianate Mansion in California, USA
The Superb Villa Verai on Phuket Island, Thailand
The Sophisticated Casa Villa Flamingo in Spain
Green Gables Home In Fairfield, Connecticut, United States
Behr’s Brilliant Blues: 70 Shades of Stunning Paint Colors
10 Different Types of Blue Paint Colors