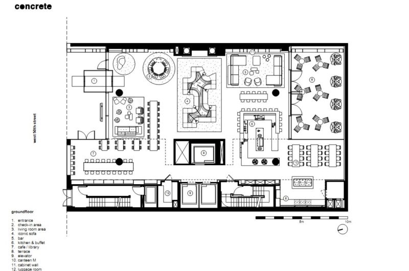
Based in Amsterdam, the hotel chain called citizenM recently opened a brand new establishment within one of the most popular areas of New York City – Times Square. The hotel in question boasts no less than 230 lavishly appointed rooms, all of which flaunt exquisite décor elements, vibrant color palettes and comfortable living arrangements while ensuring fantastic views of New York and its main highlights.
The hotel’s main living room features a remarkable array of art pieces signed by Julian Opie, but we should also mention the establishment’s amazing rooftop bar that tempts visitors with delicious drinks and comfortable lounging areas. Known around the world as one of the most affordable luxury hotels, citizenM strives to ensure utmost comfort and exquisite experiences for its visitors by disposing of unnecessary elements and implementing a strict “no hidden costs” policy.
The 230 rooms that are a part of the Times Square citizenM hotel boast about 150 square feet of space each and include great beds as well as rain showers, and that’s all you need really, especially if you’re not planning to stay in the city for long.
Design: Concrete Architectural Associates


















More Similar Articles Like This
Amazing Four Seasons Resort Bora Bora
Unique Click Clack Hotel In Bogota, Colombia
70 Shades of Green: Benjamin Moore’s Vibrant Paint Colors
Green Gables Home In Fairfield, Connecticut, United States
Pure Perfection: Discover the Top White Paint Colors for a Flawless Décor
Wonderful Yachting Club Villas at Elounda Beach by Davide Macullo Architects
Behr’s Brilliant Blues: 70 Shades of Stunning Paint Colors
Beach House CN – A Superb Contemporary Home in Peru