This contemporary masterpiece was designed by Patrick Tighe Architecture and is located on a hillside in Malibu, California, USA. Due to its elevated positioning, it benefits from staggering panoramas of the Pacific Ocean, and it comprises a minimalistic, gallery-like living space that is used to showcase the owner’s impressive collection of contemporary art pieces. The project involved the remodeling of an existing post-and-beam home, which now boasts an improve structure, a plus of sustainability and a modern look.
The 2,200 square-foot house flaunts a grand entry door made out of a stainless steel tube frame, which is equipped with a hydraulic pivot and a hidden magnetic lock. The two levels are linked by a contemporary staircase with cantilevering steel treads, each treat featuring its own unique laser-cut pattern. The different patterns filter sunlight that flows in through a skylight, and they help create superb representations of light and shadow.
From the architect:
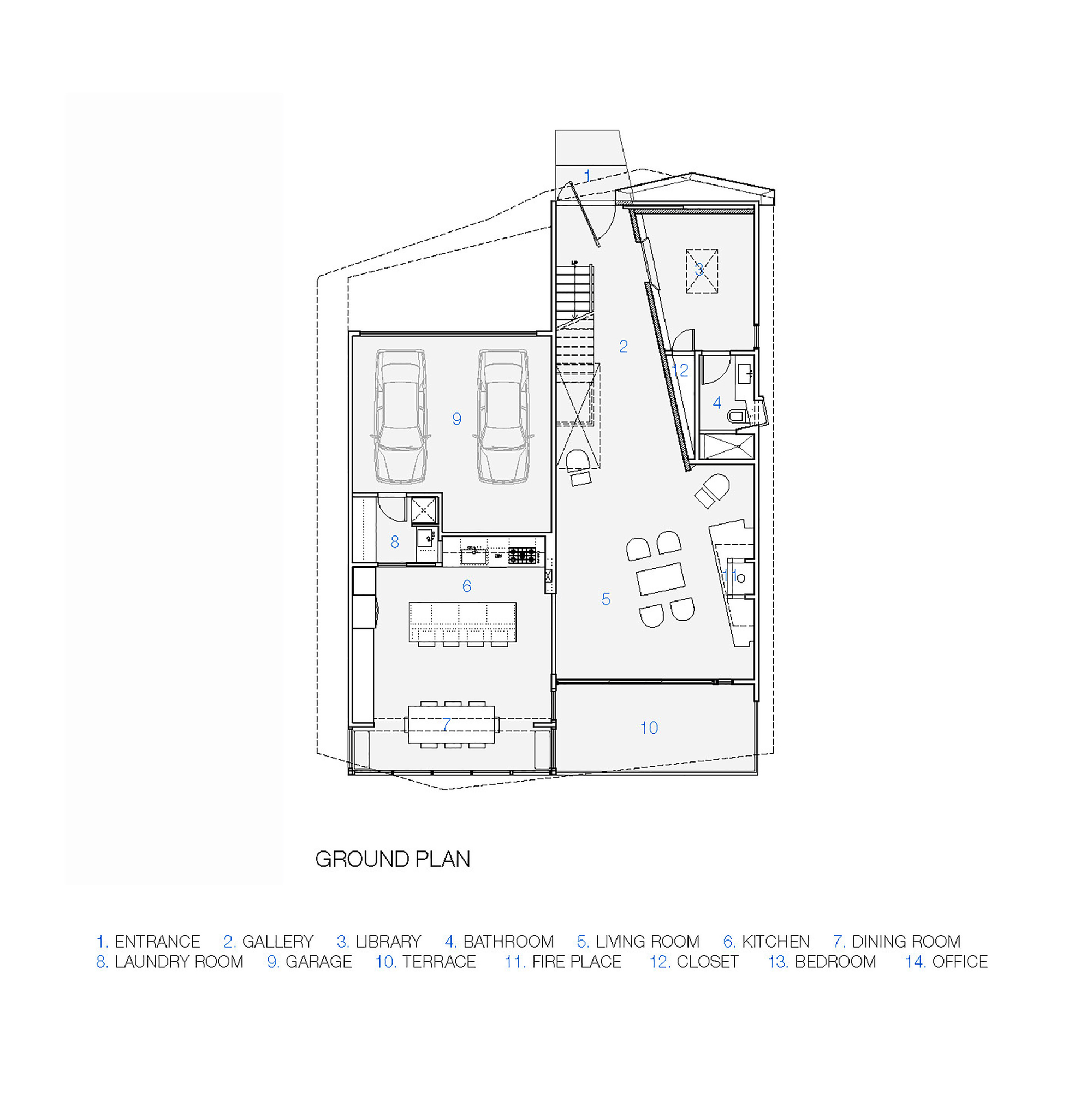
The 2200 sq. ft. residence is located on a severe hillside site in Malibu overlooking the Pacific Ocean. The project is an extensive remodel of an existing post-and-beam home in need of a structural, programmatic and environmental upgrade. The residence is re-envisioned for the 21st century.
The existing roof geometry is accentuated creating a language of faceted surfaces. The articulated volume of the building’s front facade extends indoors to define the interior spaces, resulting in a dematerialization of the roof, wall and floor planes. A forced perspective is created, framing the extraordinary views out to the Santa Monica Bay.
The minimal, gallery-like living space is designed to accommodate the client’s extensive collection of contemporary art. Display niches, lighting and the configuration of the spaces are designed to enhance the experience of viewing the art.
The stair is designed with cantilevering steel treads, each with a custom laser-cut pattern. Light from the skylight above filters through the perforated stair to project an ever-changing texture of shadow and light on the walls and floor.
A grand entry door made of a stainless steel tube frame marks the threshold into the relatively small house. The 10′ high door makes use of a hydraulic pivot and a concealed magnetic locking device.
Sustainable features include a 5kW photovoltaic system. The solar power is linked to a charging station in the garage for the client’s electric vehicle. Terrazzo flooring contains hydronic radiant heating. Energy efficient building systems and a sustainable material palette are used throughout.
Location: Malibu, CA, USA
Area: 2200.0 ft2
Year: 2014
Photographs: Art Gray Photography, Bran Arifin Photography
Project Team: Evelina Sausina, Chia-Min Wang, William Hu, Antonio Follo, Michael Ho, Kervin Lau, Ted Digiro¬lamo, Haleh Olfati, Hazel Aquino, Gelareh Arbab
Structural Engineer: A Chan And Company
Metalwork: Bancroft Construction
Woodwork: Funtime Cabinetry Factory
Cnc Workshop: Machineous
Upholstery Workshop: Sergio’s Custom Upholstery
Flooring Contractor: Hermosa Terrazzo
General Contractors: Borrego & Co.; Tso Construction















More Similar Articles Like This
Opulent Mandarin Oriental Hotel in Paris
70 Shades of Green: Benjamin Moore’s Vibrant Paint Colors
Unique Click Clack Hotel In Bogota, Colombia
Seamlessly Apartment by the Beach by ZZ Architects
The Sophisticated Casa Villa Flamingo in Spain
Boracay Resort & Spa in the Fascinating Philippines
Beautiful Apartment in Stockholm for $1 Million
Plain Geometric Residence Designed by Lidija Dragisic