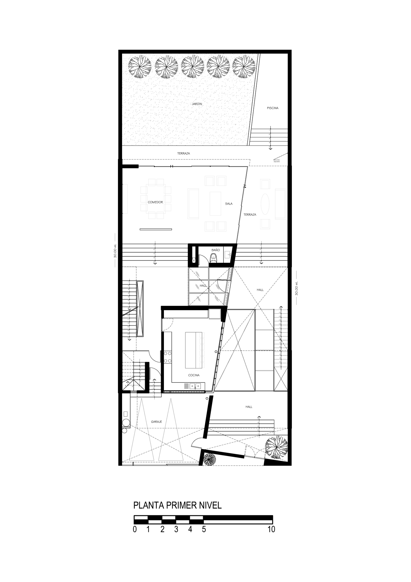
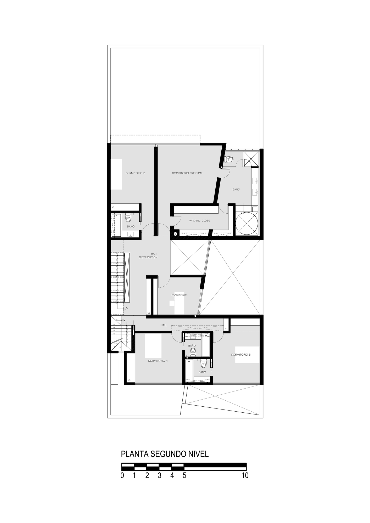
This wonderful house can be found in San Isidro, Lima, featuring a contemporary layout sketched out by Seinfeld Arquitectos and built in 2009 by Nahum Zaidman providing 577 square meters of living space.
The house flaunts modern interiors with large windows that ensure an unobstructed flow of natural light, creating a seamless transition between the indoors and the outdoors while also providing great views of the surrounding environment and the rear garden.
All rooms are appointed with a blend of luxury conveniences, high-end appliances and beautiful decorations, creating a relaxing and comfortable home environment to be enjoyed by the owners and their lucky guests.





















More Similar Articles Like This
Vibrant Concrete Floor Paint Colors to Elevate Your Space
Marvelous Anantara Dhigu Resort
Lawn Care Tips, The Basics For Each SeasonÂ
How Seattle Lawn Care Service Deals With Overgrown Lawns
The Sophisticated Casa Villa Flamingo in Spain
Vibrant Wood Tones: Explore a Spectrum of Spray Paint Colors!
The JKC1 House in Bukit Timah, Singapore
Saguaro Palm Springs by Joie de Vivre