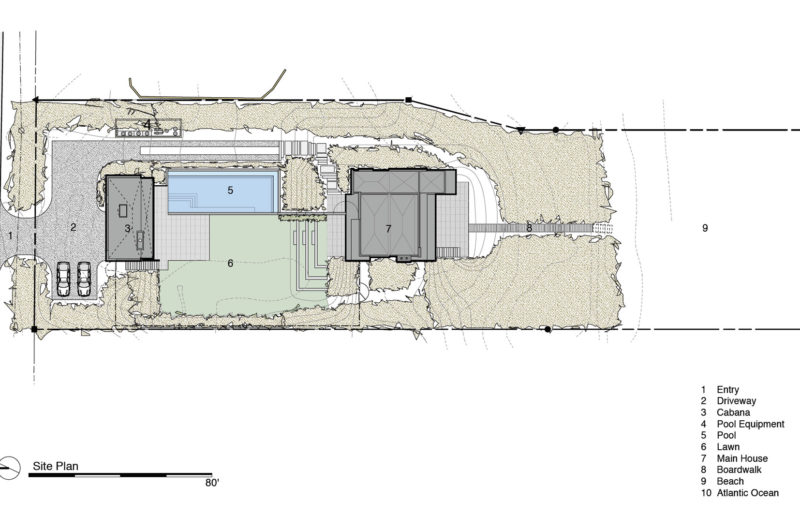
Situated in Bridgehampton, New York, USA, the Dune House is a contemporary luxurious house, designed by Stelle Architects Studio.
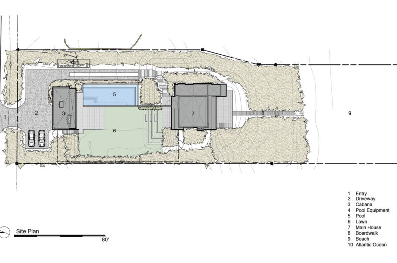
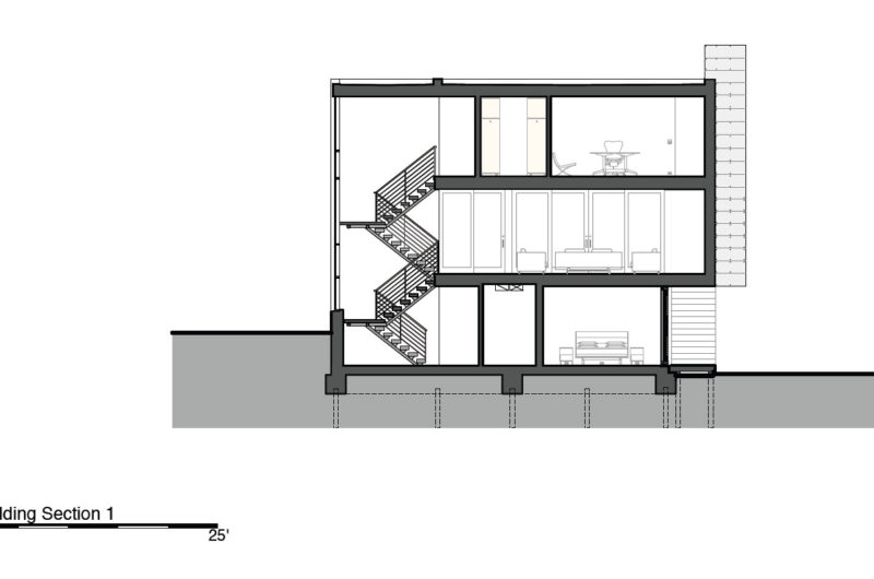
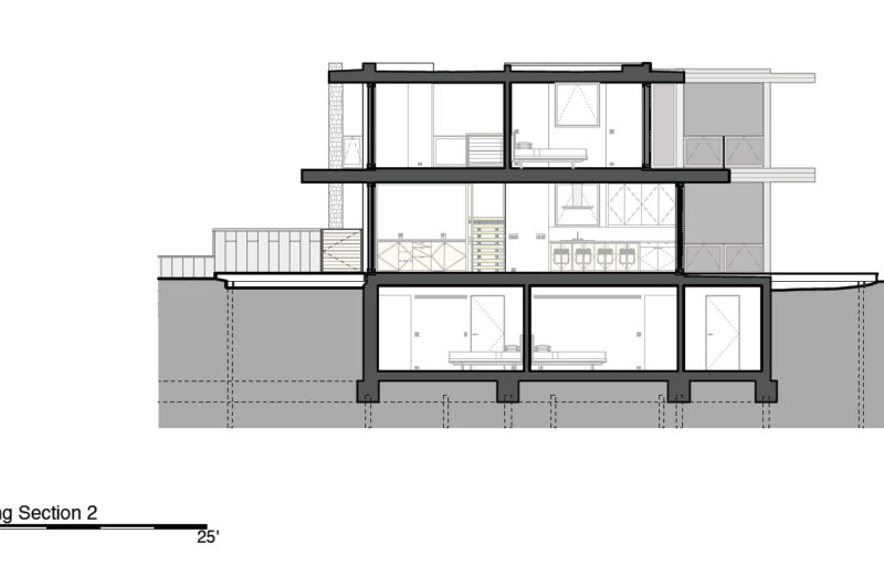
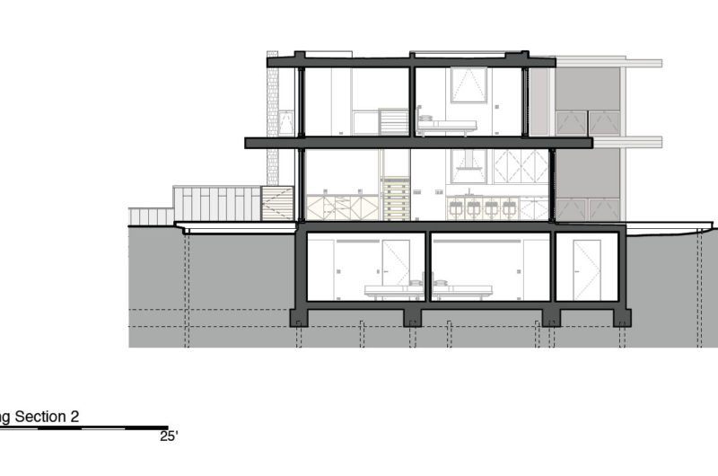
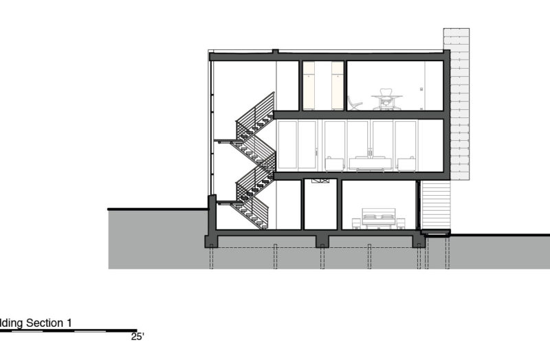
The two-story residence was built on a secluded ocean front site. Water, sand and silence is what surrounds this beautiful residence. The original house did not follow the present coastal construction standards, which required a much higher elevation. The architects kept the original dynamics and scale of the site, and designed a house according to the spirit and footprint of the original building.
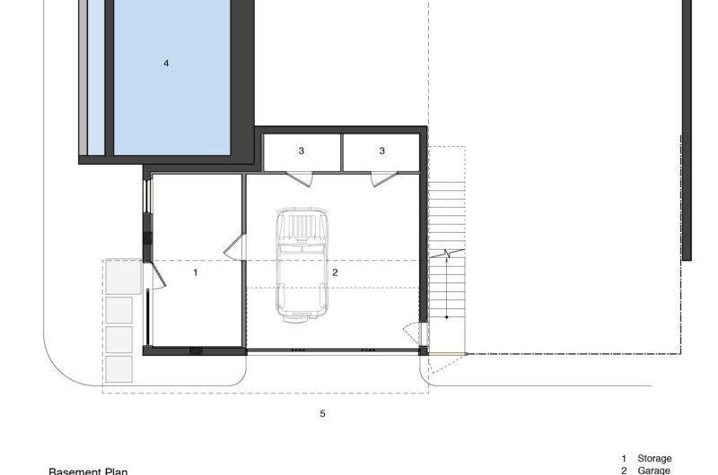
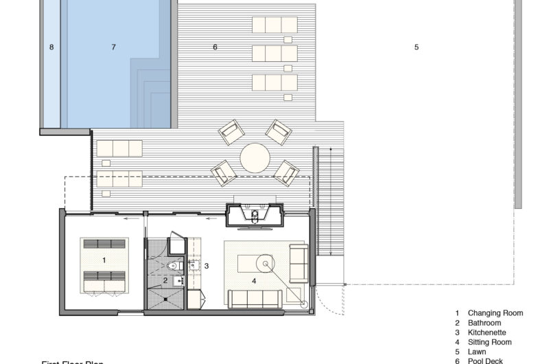
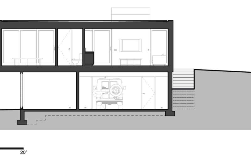
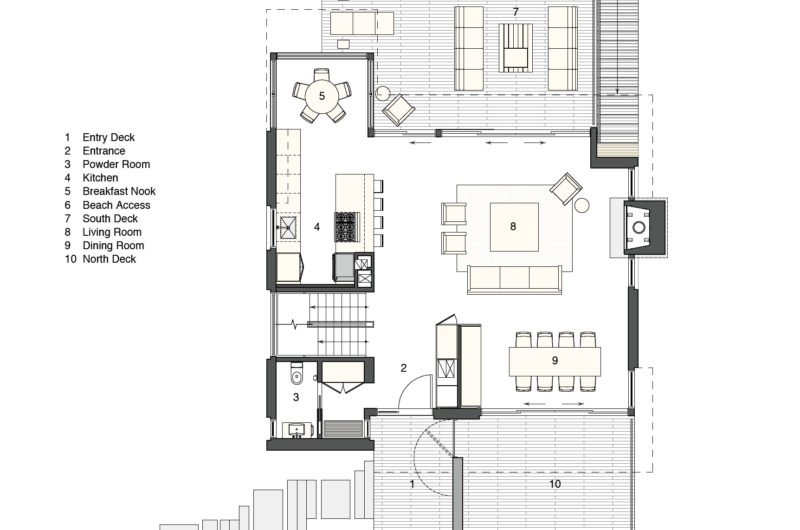
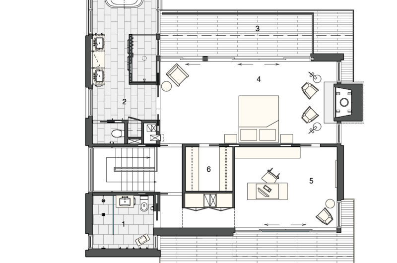
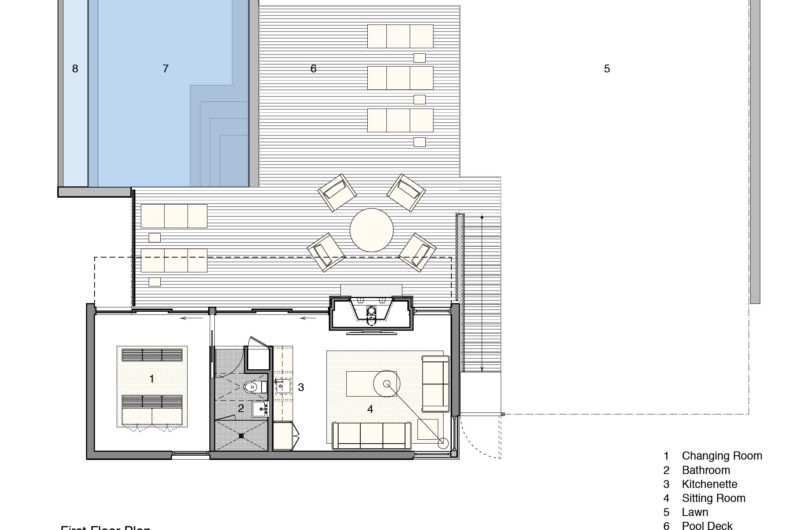
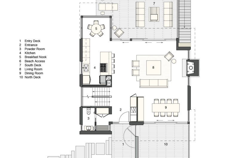
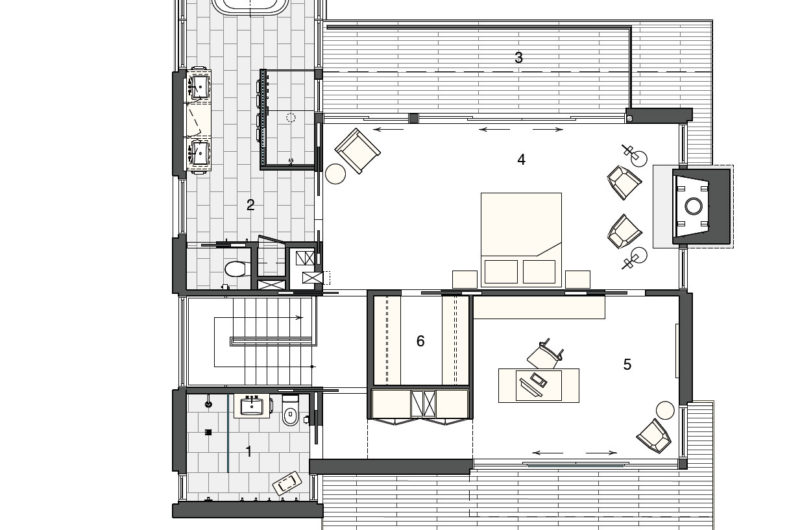
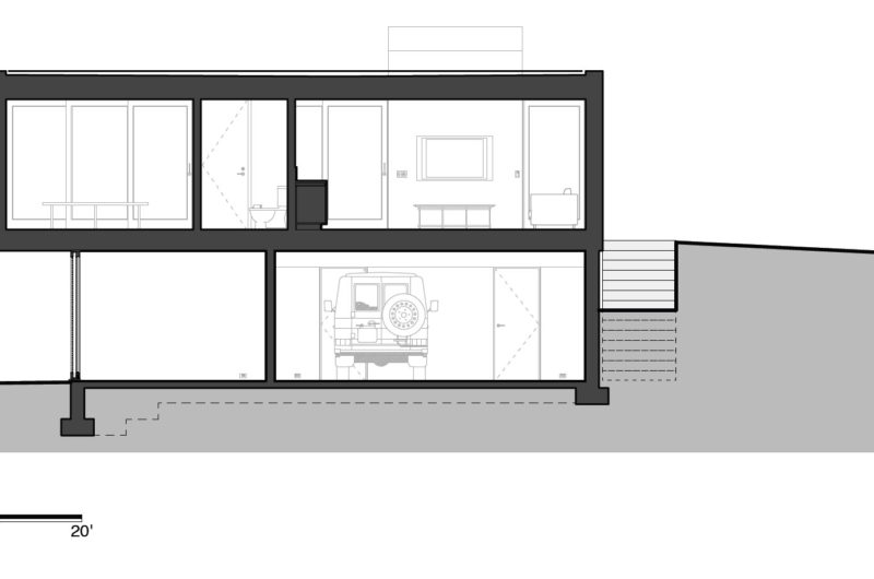
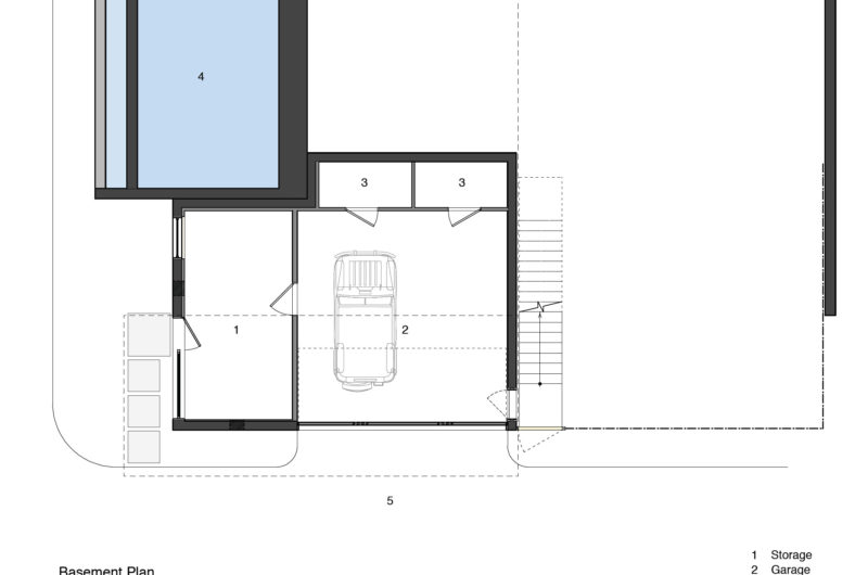
The house is divided into three levels, each with a different purpose. One level is for the owners, another is for living and dining, and the third one is for the guests. A simple pavilion made of glass and shingle offers magnificent views of the sparkling water and the golden beach. The overhangs from the southern side of the building provide shade in the hot summer days. Insulation is provided by the thick walls, while the geothermal system provides heating and cooling control.
Photos by: Francesca Giovanelli, Kay Wettstein von Westersheimb










































More Similar Articles Like This
Astonishing El Tovar by the Sea
Vibrant Concrete Floor Paint Colors to Elevate Your Space
Tips for Choosing the Right Blue Paint Color for Your Dining Room
Wonderful Yachting Club Villas at Elounda Beach by Davide Macullo Architects
70 Shades of Green: Benjamin Moore’s Vibrant Paint Colors
6 Garden and Lawn Tips to Get Ready for Spring
The JKC1 House in Bukit Timah, Singapore
Amazing Four Seasons Resort Bora Bora