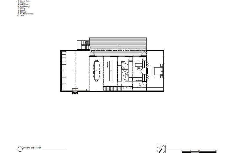
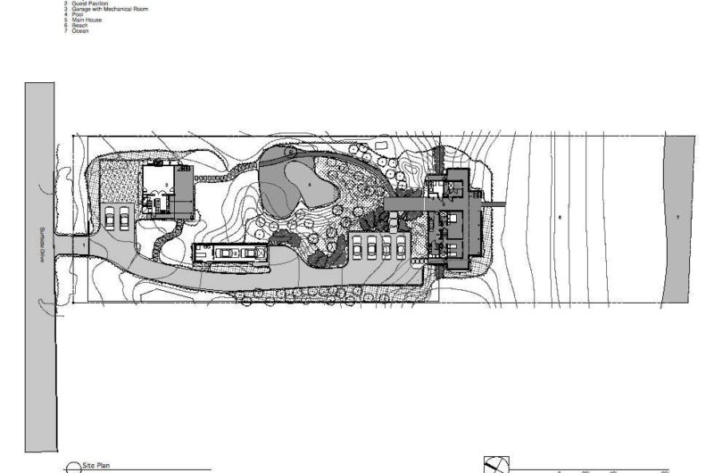
The Surfside House in Bridgehampton, New York was designed by Stelle Architects and was wonderfully integrated in the light-saturated, oceanfront landscape. It features guest quarters, a garage, a two-story house clad in horizontal slats and a swimming pool.
To its natural beauty were also added beach grass, bayberry and other plants from the area. The house also benefits from geothermal heating/cooling system and photovoltaic electric panels.
What else could you wish for when you have the sea just steps away and the house you live in is equipped with everything you need in order to live a comfortable life?















More Similar Articles Like This
The Superb Maradiva Villas Resort & Spa in Mauritius
Vibrant Concrete Floor Paint Colors to Elevate Your Space
70 Shades of Green: Benjamin Moore’s Vibrant Paint Colors
The JKC1 House in Bukit Timah, Singapore
5 Ways to Turn Your Yard Into a Fancy Space
Opulent Mandarin Oriental Hotel in Paris
Green Gables Home In Fairfield, Connecticut, United States
Outstanding Bodrum Houses in Yalikavak, Turkey