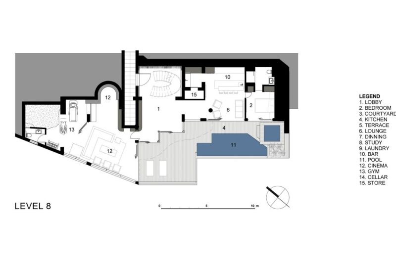
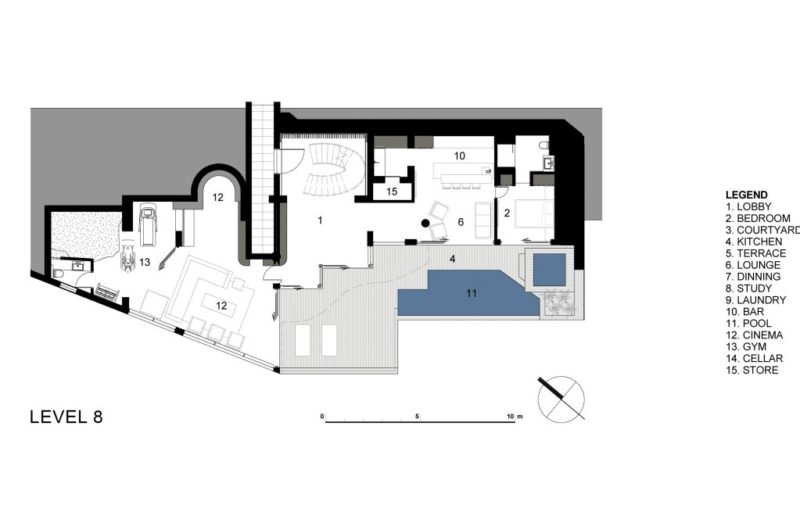
The Clifton View 7 in Cape Town, Africa was designed by Antoni Associates. The wish of the owners was to transform a double-level apartment into a home with four bedrooms, an en-suite, a gym, an entertainment cocktail bar, a cinema room and a wine cellar.
It offers incredible views over the Atlantic Ocean, the Clifton beaches and the Twelve Apostles mountain range.
The apartment can be accessed through the upper level. The dining area acts like a connection point between the spiral staircase and the entertainment space.
A lot of styles and ideas were mixed together to create a unique interior design and to give the apartment its own personality.
From the infinity pool you can see the expanse of the Atlantic City. Isn’t this beautiful or what?




















More Similar Articles Like This
Beach House CN – A Superb Contemporary Home in Peru
Seamlessly Apartment by the Beach by ZZ Architects
Santa Barbara Style Home in Paradise Valley, Phoenix
Vibrant Wood Tones: Explore a Spectrum of Spray Paint Colors!
Vibrant Concrete Floor Paint Colors to Elevate Your Space
The Sophisticated Casa Villa Flamingo in Spain
Behr’s Brilliant Blues: 70 Shades of Stunning Paint Colors
Gayton Road Residence by Paxton Locher Studio