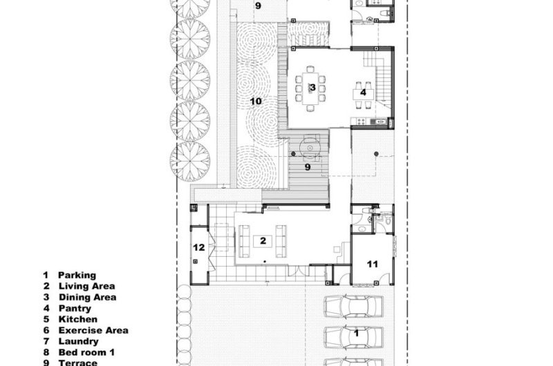
Located in Bangkok, Thailand, the L71 House is a lovely two-story contemporary residence designed by OFFICE [AT]. Even though it was built on a long an narrow site, the house was not conceived as a single mass, because such a configuration would have blocked natural light and ventilation. Instead, each room is separated from the others, thus creating an airy design that facilitates easy light and air flow.
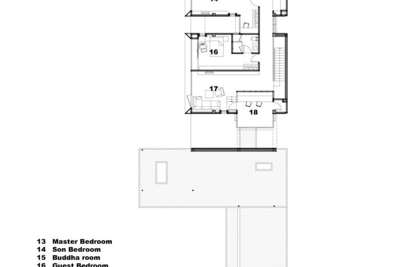
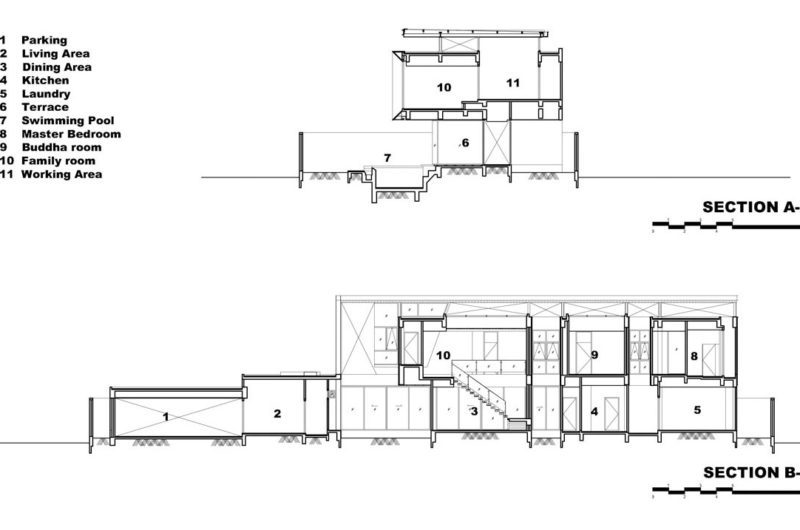
The dining room, the family room and all four bedrooms have been positioned to face north. While the private areas are located at the back of the house (where the swimming pool is also situated), the parking and the public spaces, such as the living room, can be found in the front. The owners like to host occasional parties, and this residence has a perfect configuration for that.
The indoor and outdoor spaces are beautifully and effectively interlocked, as water, wood and grass embellishes all the spaces that separate the different rooms of the house. The constant communication of the L71 House with its lovely surroundings gives it an irresistible charm.
Photos by: Wison Tungthunya

































More Similar Articles Like This
Astonishing El Tovar by the Sea
Spectacular Rooftop Apartment by Innocad
Lawn Care Tips, The Basics For Each SeasonÂ
Outstanding Bodrum Houses in Yalikavak, Turkey
Different Types Of Foundations For Summer Houses and Garden Buildings
Heavenly Lily Beach Resort & Spa In Huvahendhoo, Maldives
Green Gables Home In Fairfield, Connecticut, United States
Spectacular Luxury House in Sarasota, Florida by DSDG Inc. Architects