The Janus Residence proves once again that older homes can be transformed into comfortable, modern ones with a bit of ingenuity and skill. The 2,983-square foot home was originally built in 1930, and it was renovated dramatically by Workshop AD for a family of four. The traditional façade facing the street was left alone, while the rear façade and the interiors received the most attention.
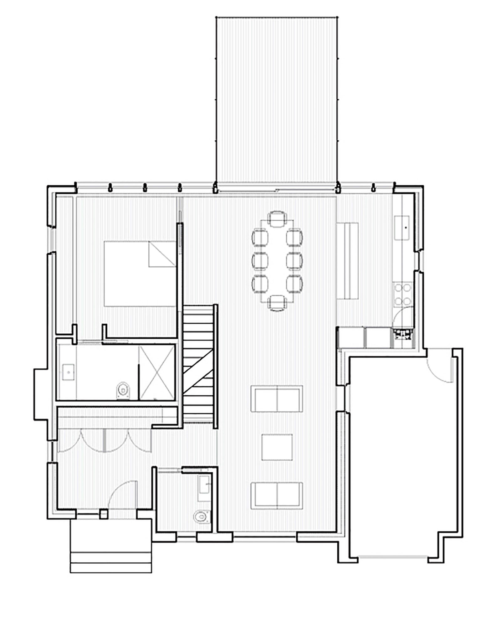
As far as the rear façade is concerned, it has been replaced with an aperture that runs along the entire width of the house. The fresh façade works well with the reorganized living areas such as the open living space, the new bedroom, the playing area for children and the family sized entryway, all of which benefit from a link to the backyard. The aperture was put together using lift slide doors and Lindal windows.
Inside, the surfaces flaunts grey washed oak floorings at the primary level, as well as a color concrete slab at the lower level. The bathroom features tile and ipe surfaces as well as quartz counters, and it includes Duravit fixtures. For a plus of comfort, the architects also implemented hydronic radiant heated floors.
From the architect:
This project, for a family of four, transforms a 1930 brick tudor into a house with two faces. The traditional, street facing façade remains untouched, concealing the dramatic change to the interior and rear façade.
Given the clients goals for cleanly detailed spaces oriented to the northern view of the ship canal and cityscape, the rear façade of the existing house was blown open and replaced with an aperture that spans nearly the entire width of the structure.
This new façade responds to the reorganized living spaces including a new bedroom, open living, family sized entry space, kids play area, and family room with direct connection to the backyard. All of this within the footprint of the existing modest home.
To contrast the existing brick facade new exterior surfaces are clad in dark stained vertical cedar boards and blackened steel accents. The new aperture, with a divided rhythm corresponding to the spatial configuration is created using Lindal windows and lift slide doors.
Interior surfaces include light grey washed oak flooring at the main level, integral color concrete slab at the lower level, painted gypsum board with flush base trim, tile and ipe bathroom surfaces, and quartz counters. Bathroom fixtures are by Duravit and kitchen appliances are by Miele. Hydronic radiant heated floors serve the immersive, comfortable, and durable environment.
Architects: Workshop AD
Location: Seattle, WA, USA
Structural Engineering: Swenson Say Faget
Area: 2983.0 ft2
Photographs: Lara Swimmer











More Similar Articles Like This
Loving Luxury at Mardan Palace Resort, Turkey
Vibrant Wood Tones: Explore a Spectrum of Spray Paint Colors!
Behr’s Brilliant Blues: 70 Shades of Stunning Paint Colors
Stunning Banyan Tree Ungasan Bali in Indonesia
Pure Perfection: Discover the Top White Paint Colors for a Flawless Décor
Wonderful Yachting Club Villas at Elounda Beach by Davide Macullo Architects
The Superb Maradiva Villas Resort & Spa in Mauritius
A Superb Italianate Mansion in California, USA