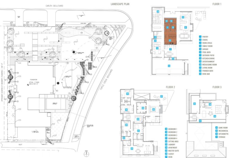
Designed by Tom Reisenbichler, the Caruth Boulevard Residence is located in Dallas, Texas. It flaunts a sustainable yet luxurious character that we appreciate very much. It is a home for bohemian living, but it is also very considerate of the lovely natural surroundings. Among its eco features we mention the photovoltaic solar panels, the recycled materials, and the architecture itself, which minimizes the need for artificial cooling and heating.
Sustainable and Luxurious Caruth Boulevard Residence
Luke Martin
I am Luke Martin, a writer who loves homes. My words are about creating comfy and nice living spaces. Let's explore ideas for decorating and making homes cozy together. Join me on this journey to make your house a special place to be.













More Similar Articles Like This
Saguaro Palm Springs by Joie de Vivre
These Top Tips Will Help You to Turn Your Garden into the Ultimate Glamping Site!
Heavenly Lily Beach Resort & Spa In Huvahendhoo, Maldives
Boracay Resort & Spa in the Fascinating Philippines
Spectacular Rooftop Apartment by Innocad
70 Shades of Green: Benjamin Moore’s Vibrant Paint Colors
Stunning Sustainable Home in Costa Rica by SPG Architects
Exquisite Crossacres Mansion In Surrey, England