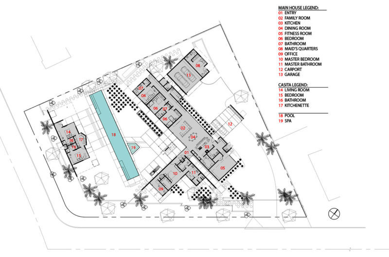
Located within a resort city called Rancho Mirage in Riverside County, California, the Dee Residence was designed by a team of skilled architects from o2 Architecture, and it represents a spacious, welcoming and lavish home. Sketched out with utmost attention to detail and built for a large family, the main residence features outstanding accommodation options for adults and children alike, but the property also includes a separate casita that features 750 square feet of living space and flaunts its own bedrooms and kitchenette.
The primary home impresses with 4,000 square feet of space, which include 2 separate bedroom wings. One wing accommodates the children’s bedrooms while the other houses the lavish master bedroom as well as the home office. The wings meet at the heart of the abode, where we find dining areas, a living room and a marvelous kitchen. The living areas are connected to a courtyard, which boasts a gorgeous swimming pool, a fireplace and a sofa.
From the o2 Architecture:
This 2013 residence with detached casita is located on the western edge of the Sonora Desert in Rancho Mirage, California. The clients were seeking a durable, climate and resource efficient, modern home to accommodate the seasonal needs of their large family.
The 4,000sf main house is divided into two bedroom wings that cross at the core of daily living patterns: kitchen and living/dining. One wing is dedicated to the master bedroom/home office, while the other wing is dedicated to the children’s bedrooms.
Both wings have access to the pool courtyard, while the master has an additional private court. The 750sf detached casita contains two bedrooms and a kitchenette. The main house and casita enclose the courtyard and lap pool while the adjacent rugged hills ground the home in the greater desert context.
Photos by Lance Gerber



















More Similar Articles Like This
A Superb Italianate Mansion in California, USA
How Seattle Lawn Care Service Deals With Overgrown Lawns
Spectacular Luxury House in Sarasota, Florida by DSDG Inc. Architects
Dreamy Oceanfront Chateau In West Vancouver, Canada
The JKC1 House in Bukit Timah, Singapore
Plain Geometric Residence Designed by Lidija Dragisic
Best paint colors for the living room
Boracay Resort & Spa in the Fascinating Philippines